Garden Wall Residence

Project Details

Project Name
Garden Wall Residence
Project Types
Single Family
Project Status
Built
Year Completed
2015
Size
2,950 ft²

Project Description

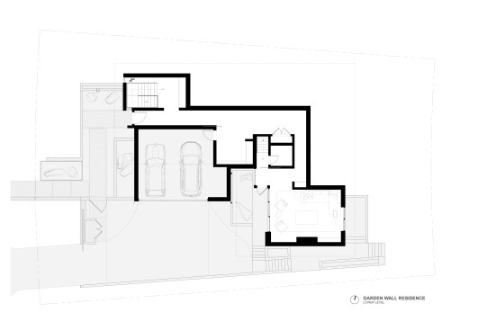
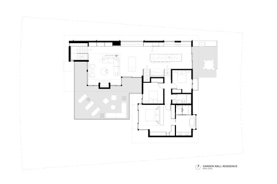
This elegant home is situated on a slope and sits back from the street, and providing a classic, timeless, and understated presence. Concrete and cedar create a pleasant contrast to the lush greenery surrounding the home. By nestling the house into the ground, the design features two volumes on shifted planes with varying floors levels to highlight a playful circulation experience throughout the home. The journey begins at the entry, located at lower level, and leads into a sun soaked stairwell that is cleverly day lit from a window above. With 3 bedrooms on the upper level, and another bedroom and office on the lower level, the floorplan maximizes the use of space while simultaneously creating transparent light filled rooms that seek to blur the line between indoor and outdoor spaces. On the main level, an open kitchen and family room provides a direct line of access from the front deck to the backyard. By concealing electrical and HVAC behind cabinets and installing infinity windows above the counters, the kitchen starts to become an open atrium featuring a vibrant green wall with a skylight above. Continuous ceiling planks in the family room create a frame-less perspective that blends the interior space with the outdoor deck. The living areas are configured to provide each room with the maximum amount of sunlight. Each room is carefully considered to allow multiple views of the city’s skyline and to provide a layered living experience all throughout the home.

Upcoming Events

  • Slate Reimagined: The Surprising Advantages of Slate Rainscreen Cladding

    Webinar

    Register Now
  • The State of Residential Design Today: Innovations and Insights from RADA-Winning Architects

    Webinar

    Register for Free
  • Specifying Smarter with Copper-Clad Aluminum (CCA) Metal-Clad Cable

    Webinar

    Register for Free
All Events