Garden Street House

Project Details

Project Name
Garden Street House
Location
AustinTX
Architect
Low Design Office
Project Types
Single Family
Project Scope
New Construction
Shared By
Madeleine D’Angelo
Project Status
Built
Year Completed
2012

Project Description

FROM THE ARCHITECTS:

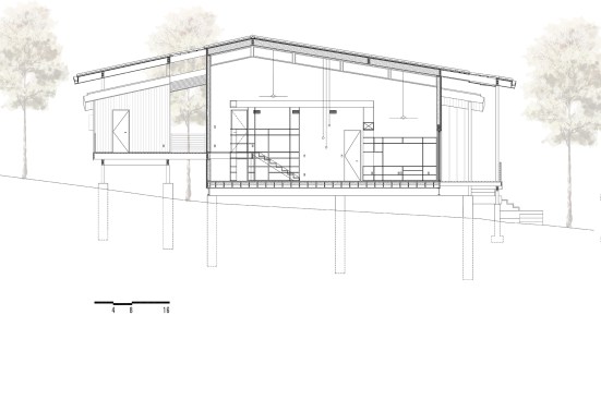
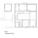
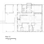
This house weaves green building and contemporary design into the context of its Austin, Texas neighborhood — on a budget. It was conceived as a framing system for the lives of those within, using a variety of implicit framing devices at different scales to create subtly distinct moments that can be experienced separately or simultaneously.

The house holds and displays records of the lives within it through a continuous shelving system which simultaneously shapes larger spaces into zones for living. In this way the house serves as an archive, enriching one’s experience of everyday life and its intimate moments with personalized framed settings.

Because one is always moving through these not-completely defined spaces, one’s understanding of the house is layered with a variety of impressions that may evolve from day to day and throughout the years spent here.

Project Credits:
Project: Garden Street House
Architects: Low Design Office

Upcoming Events

  • Design Smarter: Leveraging GIS, BIM, and Open Data for Better Site Selection & Collaboration

    Live Webinar

    Register for Free
  • Slate Reimagined: The Surprising Advantages of Slate Rainscreen Cladding

    Webinar

    Register Now
  • The State of Residential Design Today: Innovations and Insights from RADA-Winning Architects

    Webinar

    Register for Free
All Events