Gammel Hellerup Gymnasium

Project Details

Project Name
Gammel Hellerup Gymnasium
Location
HellerupDenmark
Project Types
Community
Project Scope
New Construction
Shared By
mkrochmal
Project Status
Built
Year Completed
2013
Size
11,840 ft²

Project Description

Category: Grow
Award
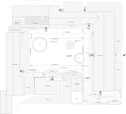
The design for the Gammel Hellerup Gymnasium began with the simple parabolic curve of a ball in motion, as described by a mathematical formula. That basic idea served as the springboard for the resulting multipurpose structure, which succeeds in both housing and supporting program while not diminishing the value of the buildings surrounding it. Instead of blocking views and daylight from existing buildings around an open courtyard with the mass of a multistory structure, New York– and Copenhagen-based BIG’s design dug deep, excavating earth—which was then piled outside the ring of buildings to form a raised soccer field—and placing the bulk of the new high school sports hall below grade. The gently sloped roof—the curve of which is based on that original formula—provides an active public gathering space with integrated outdoor furniture.

Inside the 5,200-square-foot gym, glulam wood beams, with varied degrees of curvature, mark out regular intervals on the ceiling stretching over concrete retaining walls. Clerestory windows at the perimeter allow daylight to complement staggered fluorescent fixtures. At the courtyard level, the roof’s lowest edge doubles as a bench; clad in wood decking, the whole roof surface can be occupied.

The jurors were impressed by the gymnasium’s duality despite its singular design inspiration. “The mathematical formula reveals itself above,” juror David Jameson said. “It shows pressure and counter-pressure, and there is a gestural component that is made both performative and structural.” Juror Cathy Lang Ho also admired the flexibility of both interior and exterior spaces, noting that the single concept had been expanded to allow multiple possibilities. “This space is just so inspiring because it is open-ended,” she said. “You could do anything on the roof—hang out, sit, play, and lounge.” —Deane Madsen, Assoc. AIA

Upcoming Events

  • Slate Reimagined: The Surprising Advantages of Slate Rainscreen Cladding

    Webinar

    Register Now
  • The State of Residential Design Today: Innovations and Insights from RADA-Winning Architects

    Webinar

    Register for Free
  • Specifying Smarter with Copper-Clad Aluminum (CCA) Metal-Clad Cable

    Webinar

    Register for Free
All Events