Frame

Project Details

Project Name
Frame
Location
TijuanaMexico
Architect
Design Opera
Project Types
Multifamily
Project Scope
New Construction
Shared By
Madeleine D’Angelo
Project Status
Built
Year Completed
2021
Size
35,200 ft²

Project Description

This article first appeared in the July/August 2022 issue of ARCHITECT.

Driving around the city of Tijuana, Gregory De Peña, AIA, finds inspiration in a cityscape marked by the skeletal outlines of new construction. And in Mexico’s second most populous city—where concrete is cheaper than in the U.S.—there are plenty of new buildings on the rise.

“You see these beautiful concrete structures coming up and they’re just like our building, but the difference is, they cover it up,” De Peña says. “The beauty of the concrete frame is having those open spaces. The minute you enclose them, it’s gone.”

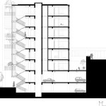
De Peña, founding principal of the Los Angeles–based firm Design Opera, is speaking about the Frame Apartment Building, which was completed in August 2021 after about two years of construction. Built on a hillside in the El Grano neighborhood of Tijuana, Frame is a 32,000-square-foot post-and-beam residential tower that rises six floors and houses 12 units, ranging from 1,200 to 1,500 square feet. Frame is the first apartment building for Design Opera, which also has an office in Tijuana. The goal for this design-build project, De Peña says, was to create beautiful and spacious family-friendly units, build community, and help alleviate the housing crisis that has hit Tijuana, like cities worldwide.

Design Opera design principal Christian Santini says having a private client—famed Mexican boxer Julio César Chávez—was a boon to the design process. “A lot of the buildings in Tijuana are developed by developers. Every square foot counts,” Santini says.

De Peña recalls reviewing apartment plans when he was on the design review board of the Centre City Development Corporation in San Diego, only about 20 miles from El Grano. “The developers always wanted to cram in additional units. There was never any concern for how you live in a space, how you use a space, how you furnish a space,” he says. De Peña also lived in one of these units and did not want to replicate the cramped experience. To avoid this pitfall, the Design Opera team envisioned Frame from the inside out, prioritizing the larger bedrooms—each unit has two or three bedrooms—and kitchens often found in single-family housing. Each floor features two units, and each unit features oak floors and cabinetry juxtaposed against concrete, glazing, and white quartz countertops. The largest windows are on the north side to reduce solar heat gain. The exterior is an ode to the ever-changing concrete silhouettes of the Tijuana skyline.

Bernardo Enriquez, a design principal, says they chose concrete as a primary material for several reasons: It is used widely in Mexico and does not require a specialized labor force; it is resilient and low-maintenance; it regulates temperature; and it is amenable to adaptive reuse. The firm also sourced concrete from a producer near the site, Enriquez says, which helped minimize the project’s carbon footprint.

To highlight the building’s frame and mimic the yards of single-family houses, Design Opera included staggered terraces throughout, both for private-use and common areas, including the ground level south-facing terrace with a pool. The terrace’s carbonized and pest-resistant bamboo plank ceilings add warmth to the exterior. “Having those huge terraces improves the quality of life,” says Santini, explaining that indoor-outdoor spaces are a signature of the firm. Some are two stories high so residents can plant trees, and while the terraces are at different levels, neighbors can still communicate if they choose. “We wanted to promote community,” says Santini, who says they are prioritizing this in upcoming multi-residence projects.

“We try to tell a story. No matter what project we’re working on, we look at and research the heart of the problem so we can develop a valuable solution,” De Peña adds. “The housing subject right now is everything. Working on this project really opened our eyes and made us want to be more involved.”

PROJECT CREDITS
Project: Frame, Tijuana, Mexico
Client: Private
Architects: Design Opera, Los Angeles. Gregory De Peña, AIA (principal architect), Christian Santini (principal designer), Bernardo Enriquez (principal designer)
Interior Designer: Design Opera
Mechanical Engineer: Butemsa
Structural Engineer: Ubach Ingenieria-Diseño
Electrical Engineer: INCE Ingenieria y Construcciones Electromecanicas
Civil Engineer: Artopcon SA de CV
Construction Manager: Design Opera
General Contractor: Design Opera
Landscape Architect: Laura Selene Lugo Verdugo
Lighting Designer: Design Opera
Civil Contractor: Galarya
Windows/Glass: Vidriera Rubla

MATERIALS AND SOURCES
Adhesives, Coatings and Sealants: Niasa, Sika
Appliances: LG, Hisense
Bathroom Fixtures: Urrea
Cabinets: Wood Finish Melamine
Ceilings: Drywall Interior, Bambu Wood Exterior
Concrete: Holcim
Countertops: Artic White Quartz
Exterior Wall Systems: Metal Stud Frame
Fabrics and Finishes: Paint, Exposed Concrete, vinyl Flooring
Flooring: Glue Down SPC Wood Plank Flooring.
Glass: Black Aluminum with Low-E Tempered glass (Vidriera Rubla)
Gypsum: Panel Rey
HVAC: Multisplit System Carrier
Insulation: Owens Corning R-19 & R-11
Kitchen fixtures: Urrea
Lighting Control Systems: Leviton
Lighting: Tecnolite
Metal: Grupo Basica
Paints and Finishes: Sayer Lack
Photovoltaics or other Renewables: Thrive Solar Panels
Plumbing and Water System: PVC, CPVC, ABS
Roofing: SBS Torch down system Impercal
Structural System: Foundation-Concrete Piles, Columns-Poured Concrete, Waffle Slabs
Wallcoverings: Paint
Walls: Metal Stud with Drywall and Densglass, 6” masonry block
Windows – Black Aluminum with Low-E Tempered glass (Vidriera Rubla)
Doors – Wood Veneer finish

Upcoming Events

  • Design Smarter: Leveraging GIS, BIM, and Open Data for Better Site Selection & Collaboration

    Live Webinar

    Register for Free
  • Slate Reimagined: The Surprising Advantages of Slate Rainscreen Cladding

    Webinar

    Register Now
  • The State of Residential Design Today: Innovations and Insights from RADA-Winning Architects

    Webinar

    Register for Free
All Events