Four Stairs: Addition And Renovation To A Historic Virginia Farmhouse

Project Details

Project Name
Four Stairs: Addition And Renovation To A Historic Virginia Farmhouse
Project Types
Other
Project Scope
Preservation/Restoration
Shared By
Suren
Project Status
Built
Style
Modern
Size
3,321 ft²
Room or Space
Kitchen

Project Description

2009 RADA
Restoration / Preservation / Merit

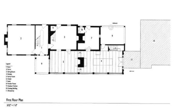
Presented with a diverse collection of buildings, Barnes Vanze Architects restored the architecturally significant structures and inserted a glassed-in room to unify the house. “We made it look like a porch,” says Stephen Vanze, AIA, LEED AP. “It’s the only space with modern conveniences.” And the space, which comprises the kitchen and family room, is key.

Modern appliances and a flagstone floor update the look, but other details, such as the Douglas fir beams made from trees on site, complement the original structures. A new structural insulated roof increases energy efficiency.

“They brought the house into a 20th-century lifestyle and maintained the richness,” said a judge.

Upcoming Events

  • Design Smarter: Leveraging GIS, BIM, and Open Data for Better Site Selection & Collaboration

    Live Webinar

    Register for Free
  • Slate Reimagined: The Surprising Advantages of Slate Rainscreen Cladding

    Webinar

    Register Now
  • The State of Residential Design Today: Innovations and Insights from RADA-Winning Architects

    Webinar

    Register for Free
All Events