Four Seasons Residence 29

Project Details

Project Name
Four Seasons Residence 29
Location
AustinTX
Project Types
Custom
Project Scope
Interiors
Shared By
dmadsen
Project Status
Built
Size
5,460 ft²

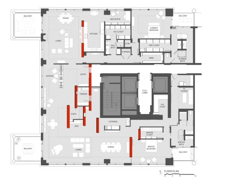
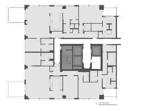
Project Description

This interior remodel combines two condominium units into one large unit suitable for hosting events, fundraisers, and gatherings. The intent was to reveal a grand and expansive event space that could still serve as a comfortable living and dining space for the clients. The large gesture to open the space up is tempered by a series of wood-clad slab walls whose irregular placement was driven by building infrastructure. These walls give organization to the entire layout while also providing depth and layering of space. Perpendicular to the wood walls run short walls highlighting a rich palette of bronze, glass panels, and leather mosaic. A luxurious hand scraped wood floor ties together existing and new in a seamless transition from public to private.

The final outcome is a rich and cohesive space which symbolizes a growing trend of transplants from more cosmopolitan communities bringing fresh energy and imagination to Austin.

Upcoming Events

  • Design Smarter: Leveraging GIS, BIM, and Open Data for Better Site Selection & Collaboration

    Live Webinar

    Register for Free
  • Slate Reimagined: The Surprising Advantages of Slate Rainscreen Cladding

    Webinar

    Register Now
  • The State of Residential Design Today: Innovations and Insights from RADA-Winning Architects

    Webinar

    Register for Free
All Events