Four Eyes House

Project Details

Project Name
Four Eyes House
Project Types
Second Home
Project Scope
New Construction
Shared By
mkrochmal
Project Status
On the Boards/In Progress
Year Completed
2013
Size
3,400 ft²

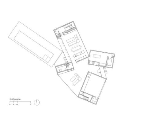
Project Description

On the Boards / Merit
This proposed weekend retreat responds to an extraordinary setting—California’s Coachella Desert—by isolating views in space and time. Each of the four bedrooms caps a three-story tower which is oriented, periscopelike, toward a prospect: the sunrise, mountains in the after­noon, distant city lights, the night sky. “The main floor,” says architect Edward Ogosta, AIA, LEED AP, “becomes this field that connects the towers.” The jury noted the concept’s clarity and power. “I like the composition of very simple forms,” said one judge. “It engages the landscape in a nice, sculptural way. You want to be there.” —Bruce D. Snider

Upcoming Events

  • Build-to-Rent Conference

    JW Marriott Phoenix Desert Ridge

    Register Now
  • Reimagining Sense of Place: Materiality, Spatial Form, and Connections to Nature

    Webinar

    Register for Free
  • Homes that Last: How Architects Are Designing a Resilient Future

    Webinar

    Register Now
All Events