Four Eyes House

Project Details

Project Name
Four Eyes House
Shared By
dmadsen
Project Status
Concept Proposal
Style
Modern

Project Description

AIA 2013 Small Project Awards winner in Category 3: A small project construction, object, work of environmental art, or architectural design under 5,000 SF constructed by the architect. The architect must have had a significant role in the construction, fabrication and/or installation of the work, in addition to being the designer.

FROM THE AIA:

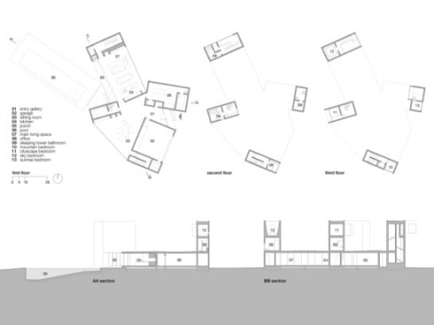
A weekend desert residence for a small family, the Four Eyes House is an exercise in site-specific “experiential programming”. Rather than planning the house according to a domestic functional program, the building was designed foremost as an instrument for intensifying particular onsite phenomenal events. Four “sleeping towers” orchestrate four spatiotemporal viewing experiences: morning sunrise (east), mountain range (south), evening city lights (west), and nighttime stars (zenith). Each tower contains a compact top-floor bedroom, sized only for the bed, and each with a unique viewing-aperture. Bedrooms are equally-sized and unassigned, such that the family’s sleeping locations can be rotated based on each individual’s desired viewing experience. Vertical circulation within the towers is similarly particularized (e.g. ladders, spiral-, switchback-, or shallow-riser-stair). Ground-floor common spaces form a loose connective field between the discrete tower volumes, and offer a more permeable relationship to the landscape. The sensations of sleeping and waking are thus inflected by the building’s foregrounding of intensified onsite experiential events. By sleeping in a room elevated off the ground and open to the stars, one might inhabit a deep pocket of silence for a few moments, and perhaps even perceive the movement of the Earth, as it slowly rotates beneath the sky.
Jury Comments: This is exquisite; a minimalist “tour de force”. Conceptual reinforcement of phenomena makes for a very powerful connection with nature. The imagery is expertly rendered and communicated. Both rational and lyrical and possessing excellent spatial quality. Architectural towers and horizontal lines modulate the viewer’s experience and connection with an elemental landscape. It redefines how a home should be built.
One can find minimalist, modern architecture easily these days – design blogs, glossy magazines, and so on. However, minimalist modern architecture that is referential to the cosmos, the horizon, and the sun is rare indeed. This project takes the experience of place and via an ‘architectural amplifier’ of thoughtful movement (ascension into each bedroom space) and choreographed view capture / light receiver (well-placed windows), makes it a triumphant celebration of humankind situated in the center of the natural universe.

http://www.aia.org/akr/Resources/Documents/AIAB098278
http://www.edwardogosta.com/four-eyes-house.html

Upcoming Events

  • Design Smarter: Leveraging GIS, BIM, and Open Data for Better Site Selection & Collaboration

    Live Webinar

    Register for Free
  • Slate Reimagined: The Surprising Advantages of Slate Rainscreen Cladding

    Webinar

    Register Now
  • The State of Residential Design Today: Innovations and Insights from RADA-Winning Architects

    Webinar

    Register for Free
All Events