Project Description
This Residential housing is built in a shopping street. I thought over the meaning of ‘living together’, and tried to connect the life in the apartment with city nearby by creating public spaces within it. Putting a forest into the public area of the apartment, it would be embraced by the people of city as well as residents.
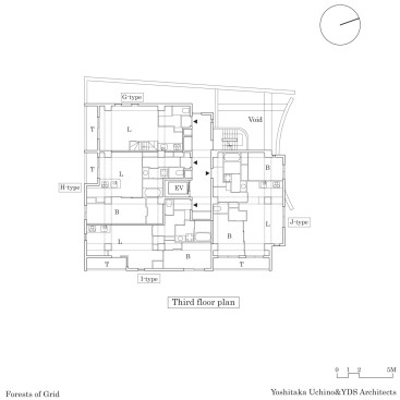
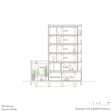
To bring an order to the daily life, I inserted uniform grids. The apartment consists of grids of square columns and beams and two walls. The forest is placed between the two walls, and stairs are put around the forest. Entering the apartment, you can see the forest and the grids of exposed concrete.
Putting the forest in the way from the entrance hall to the stairs, residents always feel nature when they go up or down the stairs. Making the rigid frame of the uniform grids, the outer walls are freed from the structures and they fold all the units like clouds. Light and wind go through in every units from tall sashes.
To connect the apartment with the city, I intended to make this forest open to the city. The curved wall surround the forest is a node between the building and the city. Through the hole dug in the curved wall, residents see the city and people outside the housing can see the trees in the forest. The column inserted into the forest integrates architecture and nature.
A white box hang over the curved wall stand still in the city. The sky framed by the walls is like ‘ one’s own sky’ for the residents. By sharing this sky and the forest, residents and people in the city relate with each other.
This was an attempt to expand living spaces and to make an environment softly connects with the city by creating a public forest which is open to the city.