Fontana Bridge Residence

Project Details

Project Name
Fontana Bridge Residence
Location
Bryson CityNC
Architect
Samsel Architects
Project Types
Shared By
dmadsen
Project Status
Built
Size
3,502 ft²

Project Description

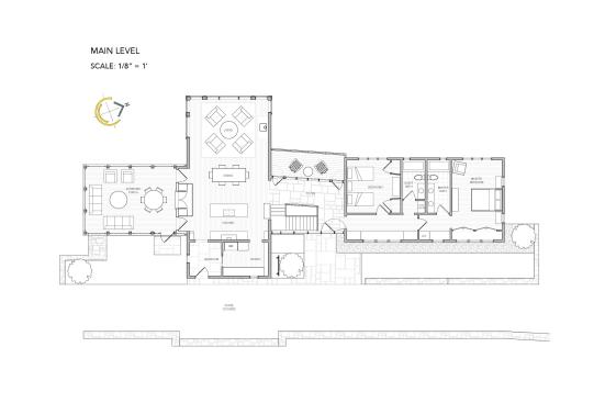
The Fontana Bridge residence is a private lake home located on Fontana Lake in Western North Carolina. The home is designed to integrate harmoniously with the surrounding Appalachian ecosystem. The understated exterior and the thoughtfully chosen palette blend into the topography of the wooded hillside. Our clients sought this location to enjoy lake activities: boating, kayaking, swimming, campfires; the home is arranged to facilitate these pursuits.

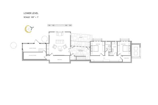
The house is distinctly and simply divided into two zones: two levels of bedrooms at the north end and the kitchen/gathering spaces on the south end. Separating those zones are the transparent main level entry and the stairs to lower lakeside level. The entry is a contemporary glassed-enclosed interpretation of a “dogtrot” – a traditional breezeway connecting two enclosed spaces.

The LEED Gold certified project is sited with a tree-filtered westerly view of the Fontana train trestle and the mountains beyond. The train trestle influenced the design of a walnut trellis, suspended above the kitchen and dining table, offers a rhythmic architectural cadence while allowing dappled overhead daylight – supplied by high clerestory windows.

When seated in the living room the view offers the feeling that you are sitting directly above the water. Expansive windows on the west, south and north walls provide inspiring daytime views as well as ample ventilation. The primary view to the west, showcases the spectacular mountain sunsets. A six-foot roof overhang and concealed, electric roll down shades provide full sunlight control.

Newly installed but mature landscaping further integrates the house into its setting. The house is nearly invisible from the lake, despite being the closest house to the water. The house only truly exposes its form at twilight – the expansive glass facades glow lantern-like, providing a homeward beacon upon return from a sunset boat ride.

Upcoming Events

  • Design Smarter: Leveraging GIS, BIM, and Open Data for Better Site Selection & Collaboration

    Live Webinar

    Register for Free
  • Slate Reimagined: The Surprising Advantages of Slate Rainscreen Cladding

    Webinar

    Register Now
  • The State of Residential Design Today: Innovations and Insights from RADA-Winning Architects

    Webinar

    Register for Free
All Events