FNBO: Colorado State University Campus

Project Details

Project Name
FNBO: Colorado State University Campus
Location
Lory Student Center, Colorado State University, Main Campus1101 Central Avenue MallFort CollinsCO80521
Project Types
Commercial
Shared By
Erin Van Zee
Project Status
Built
Year Completed
2019
Style
Modern
Size
1,065 ft²
Team
Project Manager: Bob Krupa
Lead Design Architect : Benjamin Kroll
Interior Design: Gina Lorkovic
Construction Administration: Matt Kortright

Project Description

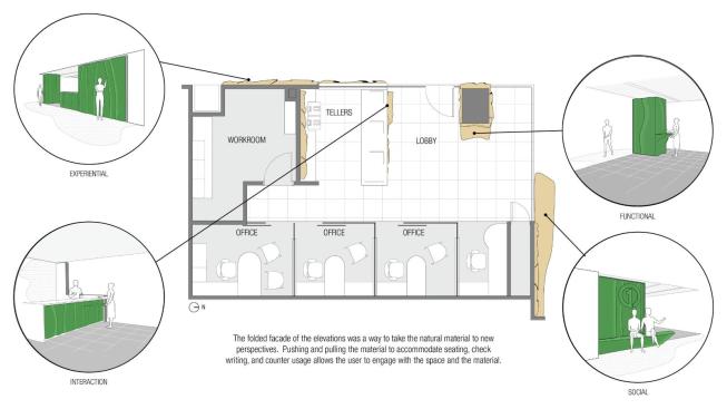
Prioritizing authenticity, impact and effectiveness, FNBO engaged RDG Planning & Design to represent its commitment to community and customer experience in a prominent location within Colorado State University’s student union. Relocating to a more condensed space, the design gives materiality a figural presence to mediate between scale and occupation, while preserving the existing bank program. Approaching the project, the novel tactile and spatial experience invites habitation. A columnar formation holds a busy corner; where a glass wall slides away, blurring the edge of public space. Reinterpreting the traditional bank typology, the new forum is akin to the openness of the “town square.” Articulating the objectives of authenticity and warmth, CNC milled plywood was explored for its ability to aestheticize the methods of construction. Material investigations revealed ways to accommodate seating, shelving, and transactions. Utilizing butcher block construction, the “grain” undulates and folds like strata, appearing sculpted by its environment.

Upcoming Events

  • Design Smarter: Leveraging GIS, BIM, and Open Data for Better Site Selection & Collaboration

    Live Webinar

    Register for Free
  • Slate Reimagined: The Surprising Advantages of Slate Rainscreen Cladding

    Webinar

    Register Now
  • The State of Residential Design Today: Innovations and Insights from RADA-Winning Architects

    Webinar

    Register for Free
All Events