Fitty Wun

Project Details

Project Name
Fitty Wun
Location
San FranciscoCA
Project Types
Single Family
Project Scope
Renovation/Remodel
Project Status
Built
Style
Modern
Team

Project Description

Think of this project as an exercise in measured freedom. The owners wanted an open, welcoming house in which three energetic young boys could bounce about in an environment where the parents are, as the clients put it, "strategically within ear, if not always eyeshot."

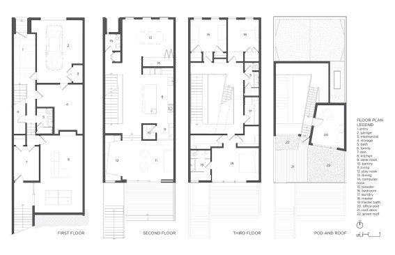
Architect Jonathan Feldman did that by opening up what was a traditional San Francisco townhouse. The main floor combines kitchen, dining, and living spaces into a great room area that becomes even greater with a two-story tall kitchen and a living area that flows out onto an outdoor deck and backyard.

A metal-screened stair leads from the street level to a catwalk that surrounds an atrium. Bedrooms lead off the catwalk, and another stair that runs diagonally across the atrium leads to a floating office "pod"—the only place that’s acoustically separated from the  mayhem below—and to a roof deck.

All this lies behind a facade that gives the simple townhouse a more modern feel yet blends into the neighborhood. What was a 2,542-square-foot home now takes up 4,188 square feet, even though the footprint stayed the same at 3,125 square feet.

See the video about the redesign and more winners of the 2015 Remodeling Design Awards.

Upcoming Events

  • Design Smarter: Leveraging GIS, BIM, and Open Data for Better Site Selection & Collaboration

    Live Webinar

    Register for Free
  • Slate Reimagined: The Surprising Advantages of Slate Rainscreen Cladding

    Webinar

    Register Now
  • The State of Residential Design Today: Innovations and Insights from RADA-Winning Architects

    Webinar

    Register for Free
All Events