First Home Bank

Project Details

Project Name
First Home Bank
Location
207 West 3rd St.Mountain GroveMOUSA65711
Project Types
Commercial
Project Scope
New Construction
Shared By
Dake Wells Architecture
Project Status
Built
Year Completed
2015
Style
Modern
Size
2,795 ft²
Team
Architect of Record: Brandon Dake
Project Architect: Matt Thornton
Associate Architect: Adriana Perrone
Associate Architect: Shane Algiere

Project Description

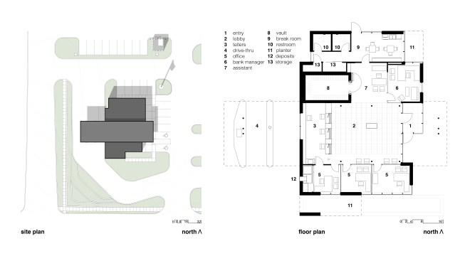
A new branch banking facility is designed for a small locally owned, community based bank in Mountain Grove, Missouri. Located on Old Highway 60, it offers a new building that is comfortable in its context of brick and wood frame buildings and yet challenges the status quo for light and transparency. The location allows the bank to separate customer services located at this facility from the administrative functions located at its corporate headquarters on the nearby historic square.
The bank president and board requested that the facility advertise the organization’s values of transparency, precision and technical capability with its strong foundation of community banking and local relationships. The plan is organized by a hovering “super-canopy” that shelters drive thru, tellers, walk up lobby and building entrance in one simple form. The super-canopy’s soffit of western red cedar and playful lighting layout enlivens the lobby and extends its warm welcome to the exterior space. The heightened transparency improves customer relationships and security, as tellers are able to make eye contact before visitors even enter the vestibule. This transparency contrasts strongly with typical bank buildings that are turned inward with small window openings. This new branch suggests an optimistic future for the community and the strong role this banking organization will play.

Upcoming Events

  • Design Smarter: Leveraging GIS, BIM, and Open Data for Better Site Selection & Collaboration

    Live Webinar

    Register for Free
  • Slate Reimagined: The Surprising Advantages of Slate Rainscreen Cladding

    Webinar

    Register Now
  • The State of Residential Design Today: Innovations and Insights from RADA-Winning Architects

    Webinar

    Register for Free
All Events