Fire Station 76

Project Details

Project Name
Fire Station 76
Location
30300 SE Dodge Park BlvdGreshamOregon
Project Types
Community
Shared By
Sara Johnson
Project Status
Built
Year Completed
2015
Size
10,120 ft²
Team

Project Description

FROM THE ARCHITECTS:

In its simplest form, a fire station comprises little more than a dwelling with an oversized garage. At its most complex, it embodies the values of its community and functions as a highly technical machine for emergency response. That understanding, infused with aspects of storytelling and context, inspired our design effort. 
Presiding over patterned fields and the Cascade mountains, Fire Station 76 serves a community of family farms and nurseries. The evident beauty of the rural environment suffused with quietly formed agricultural buildings, textured with materials of simplicity and practicality–primarily wood and metal, provided inspiration for the building concept.  
The functional focus of the station: fire – an element of both beauty and destruction – guided the treatment of materials. Using reclaimed timber from a nearby barn, the design included charring the wood surface with the traditional Japanese technique, Shou Sugi Ban. In effect, the burn provides protection from rot, decay, and insects, and turns the destructive manner of fire into an image of beauty.
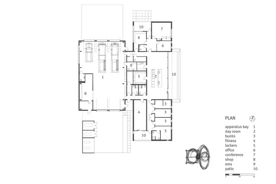
The station divides into two masses: a vaulted apparatus bay clad with metal and low-lying living quarters wrapped in wood. The apparatus bay glulam Tudor arches spanned by tongue and groove cedar decking vault over the engines, celebrating their strength and precision.  Clad in a dark board and batten reclaimed and charred siding, the living quarters rotates to face the mountains, providing sanctuary, while the lightly-colored metal clad apparatus bay orients towards the road, presenting the most recognizable feature of a fire station–the engines, to the public. Warm Western red cedar clad porches carve into the living quarters structure, sheltering exterior spaces from wind, and providing a rich comparison for the adjacent charred wood. The cedar continues to the building interior, surrounding the primary gathering spaces of the living quarters, blending inside with outside. Daylight fills the spaces, highlighting the warm wood tones. 
The station embraces fire, turning it into a feature of protection and beauty; provides a legacy for the rural community, reflecting its context in both massing and materials; and honors engines as technical machines for emergency response.

Upcoming Events

  • Design Smarter: Leveraging GIS, BIM, and Open Data for Better Site Selection & Collaboration

    Live Webinar

    Register for Free
  • Slate Reimagined: The Surprising Advantages of Slate Rainscreen Cladding

    Webinar

    Register Now
  • The State of Residential Design Today: Innovations and Insights from RADA-Winning Architects

    Webinar

    Register for Free
All Events