Fire Island House

Project Details

Project Name
Fire Island House
Location
Fire IslandNY
Project Types
Single Family
Shared By
Andrew Franz Architect
Project Status
Built
Year Completed
2019
Style
Modern
Size
1,500 ft²
Team
Principal in Charge: Andrew Franz
Associate: North Keeragool

Project Description

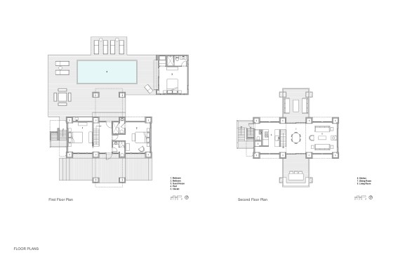
Nestled into a wooded site on a sandy barrier island is a modern masterpiece: a 1965 house designed by modernist architect Horace Gifford, who was responsible for some 60 glass and cedar houses on the island.

Andrew Franz Architect, along with interior designer Peter Dunham, designer Jamie Bush, and landscape architect Tania Compton, renovated the house as part of a master plan that included a new guest house, pool, exterior stair, new decking and circulation paths, and relocated entry pavilion.

The designers’ greatest goal was to ensure that the additions were honestly and clearly distinguished from the original, while not distracting from it. The new guest house was carefully sited to create an internal courtyard that acts both as a connector between the old and new as well as an extension of the indoor-outdoor living space. The addition references the original building in geometry, cedar siding and jalousie windows, but without mimicking Gifford’s details. A new cantilevered stair seemingly floating away from the house connects the new ground-floor outdoor living areas with the elevated decks. Throughout, a simple palette of materials was used to remain consistent with the original.

The exterior of the original house was fully restored with new cedar sheathing, copper flashing, and roofing. The project also restored all interior wood surfaces, jalousie windows and discretely integrated a new HVAC system. Minor plan gestures were incorporated to improve circulation and function such as enlarged bathrooms, a restored kitchen, and a vintage fireplace. The wild character of the small parcel was preserved, cleaning out scrub and reintroducing native plants, grasses and pines to foster local flora, fauna and pollination.

The result is a modernist house that exhibits great restraint. From Franz’s perspective, the team emulated Gifford best by “trying to do more with less.”

Upcoming Events

  • Design Smarter: Leveraging GIS, BIM, and Open Data for Better Site Selection & Collaboration

    Live Webinar

    Register for Free
  • Slate Reimagined: The Surprising Advantages of Slate Rainscreen Cladding

    Webinar

    Register Now
  • The State of Residential Design Today: Innovations and Insights from RADA-Winning Architects

    Webinar

    Register for Free
All Events