Fenix

Project Details

Project Name
Fenix
Location
919 Fourth StreetSan RafaelCAUnited States94901
Architect
Fenix
Project Types
Entertainment
Project Status
Built
Year Completed
2012
Size
8,610 ft²

Project Description

FENIX – MARIN COUNTY’S NEW MECCA OF DREAMS AND STREAMS

A Literal Intersection Of Music, Fine Dining & Social Media

San Rafael, CA: Beyond the traditional amenities of fine dining, exotic libations, and
live music, the Fenix introduces a template for a new form of creative and social interaction — on site and online. Conceived by Laura van Galen, a visionary Bay Area CEO, the new 150-seat supper club has been designed to share live performances by talented indigenous and celebrated world-renowned artists with a local, national and eventually international audience on location and over the web at www.livestream.com/fenixlive.

“I’d been gestating the concept for integrating a hip ’literal’ performance venue within the ‘virtual’ streaming media community since 2008, and found the ideal site in my adoptive hometown of San Rafael in 2009.” van Galen says. “ Bay Area music guru Merl Saunders, Jr. joined Fenix in 2011, and helped crystallize my thinking. Merl also established our solid connect to the Walters-Storyk Design Group and architect/ acoustician John Storyk. Local (but internationally recognized) architect Tim Murphy and celebrated Executive Chef Shawn Paul rounded out our team, and work began in earnest in early 2012. We began a series of ‘private’ openings in late 2012, and have been fine-tuning our ‘soft’ opening to the public over the past few weeks. Initial feedback is extremely positive.”

Namesake of the legendary Grateful Dead keyboardist, Merl Saunders Jr. has been an integral component of SF’s music scene literally from birth. Extensive touring with artists as disparate as Michael Jackson, David Crosby and Frank Zappa, coupled with his long-term role as Sr. Executive Director of the Recording Academy (GRAMMY Awards,) provided Merl with unparalleled insights into artist (and audience) preferences and a deep appreciation for the technical requirements for high quality live performances.

“I’ve played in and attended gigs in literally thousands of venues over the years,” Saunders reveals. “As a musician and an avid fan, I know acoustics are the critical element of every successful club. No matter how fine the food and drink, if the artists don’t sound great, the club can’t survive. Laura’s vision for Fenix is centered on a critical streaming element, which further increased the need for the room to sound absolutely pristine. With credits that run the gamut from Jazz At Lincoln Center to Le Poisson Rouge, the Rockwood Music Hall and thousands of recording studios and broadcast facilities, WSDG was the ideal choice to design an acoustic soul for the Fenix.”

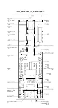
“Laura discovered an excellent platform for this extraordinary venue, the two-story high live room had great ‘bones,’” John Storyk says. “To facilitate an ideal ‘sweet spot’ environment for the audience while simultaneously defusing audience/dining noise away from the performers, the ceiling over the front bar and dining sections was dropped. Twin recording studio-style ceiling clouds constructed with a combination of broadband and membrane absorption, were floated over those areas,” Storyk explains. “We then angled the ‘clouds’ upward from the front to the rear of the room, and we added aesthetically pleasing wall panels as absorptive acoustic treatments. These elements serve dual purposes, they enhance the audio quality of the on stage performance and, they inhibit intrusive patron noise. EAW QX596 Mains and custom Sub-Woofers; EAW12 & 15” Monitors and ASHLY KLR 5000, 4000 & 2000 Power Amps cap off a terrific audio system.”

“Skype was a critical tool in our collaboration with John and WSDG Project Supervisor, Joshua Morris,” Saunders says. “We regularly walked them through the site with live iPad video to review the construction progress. Their input on everything from Control Room design to HVAC ductwork was invaluable. They participated in every facet of the acoustic design of this project including gear and console selection review.”

Positioning the FOH mixing position at the rear of the room eliminated the issue of obstructing audience view, and simultaneously provided the mixer with excellent line of site to the artist. The 2nd floor master control room receives continuous feeds from three fixed-position AW-HE50SN Panasonic HD-SDI Pan/tilt/zoom Cameras, (featuring programmable + operator-control options) and, audio from an array of almost three dozen Shure, EVRE, Sennheiser and other mics. Beyond the clubs’ terrific acoustics, artists also appreciate the chance to chill in a beautiful green room.

“Laura’s concept of establishing a subscription-based online audience for our live shows requires our mixer/director to work ‘on-the-fly’ as the performance unfolds,” Saunders ads. “We positioned a Midas Pro2 Console – 56 Mic/Line inputs with built-in faders at FOH, and customized the basic configuration to support our live streaming requirements. Our Control Room is equipped with a TC455 NewTek TriCaster 455 for complete live production and streaming, an Apple MP 2.4 for editing; an Avid Pro Tools HD Native & Interface for remixing for subsequent CD (but not DVD) distribution. The system is designed to enable us to record live albums, which we hope to do when the club is dark on Mondays and Tuesdays, and another reason we engaged ‘master studio designer.”

“The Fenix has absolutely everything going for it,” John Storyk concludes. “Laura van Galen envisions this club as the first of a group of sister clubs at select cities around the country. The vibe is hip, warm and welcoming, the menu is outstanding, and the room sounds great. The mixing consol, mics and entire technology package was selected to insure superior streaming quality. Initial feedback supports the accuracy of the choices. Marin County has a fantastic pool of local talent, and the word is already out to ‘A List’ national artists that this is a terrific showcase venue. With the combination of their streaming and recording capabilities, it’s a safe bet to say the world will be hearing great music generated by the Fenix for years to come.”

###

Walters-Storyk Design Group has designed over 3000 media production facilities in the U.S., Europe, the Far East and Latin America. WSDG credits range from the original Jimi Hendrix Electric Lady Studio in Greenwich Village to NYC’s Jazz At Lincoln Center performance complex, broadcast facilities for The Food Network, CBS and WNET, over twenty teaching studios for The Art Institutes around the US, and corporate clients such as Hoffman La Roche. Recent credits include Jungle City, NY’s major new destination studio; private studios for Green Day, Jay-Z, Timbaland’s Tim Mosley, film composer Carter Burwell, Aerosmith, Bruce Springsteen and Alicia Keys. WSDG principals John Storyk, Beth Walters, and Dirk Noy lecture frequently at universities and industry events, and contribute regularly to industry publications. WSDG is a seven-time winner of the prestigious TEC Award for outstanding achievement in Acoustics/Facility Design, including 2012 for Jungle City. WSDG maintains offices in NY, SF, Miami, Argentina, Brazil, Beijing, Germany, Mexico City, Spain and Switzerland.

Upcoming Events

  • Design Smarter: Leveraging GIS, BIM, and Open Data for Better Site Selection & Collaboration

    Live Webinar

    Register for Free
  • Slate Reimagined: The Surprising Advantages of Slate Rainscreen Cladding

    Webinar

    Register Now
  • The State of Residential Design Today: Innovations and Insights from RADA-Winning Architects

    Webinar

    Register for Free
All Events