Farley Trail House

Project Details

Project Name
Farley Trail House
Location
AustinTexas
Project Types
Custom Home
Project Status
Built
Year Completed
2017
Size
5,144 ft²
Team
Builder: Wilmington Gordon, Builder

Project Description

2017 Builder’s Choice & Custom Home Design Awards
Custom Home More Than 5,000 Square Feet: Merit

The Farley Trail House by local firm Alterstudio is a modern-style standout in an otherwise traditional Austin, Texas, neighborhood. Most of the home’s square footage is on its first level, with a slim, bar-shaped second story that provides both a contemporary touch and a privacy buffer against future development next door.

The home, surrounded by live oaks, is built to shelter its main outdoor living space. The deck, pool, and patio are tucked inside the footprint on three sides, and limestone floors, floor-to-ceiling windows, and uninterrupted soffits help provide a seamless transition from outdoor to indoor space. A variety of materials and features repeat throughout the home. In the living room, a walnut wood screen casts shadows on an etched glass backsplash. Another screen frames the kitchen table alongside a set of display shelves, screens lead the eye into the dining room, and a slim screened backsplash is nestled within the walnut kitchen cabinet layout. The waxed-steel fireplace makes a discrete statement in the living room, as do Calacatta quartzite countertops in the kitchen.

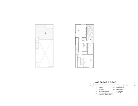
The second story contains the master suite, which offers expansive views of the surrounding area and a study with access to the rooftop deck. The master bath includes dual closets, marble countertops, and walnut cabinetry. A planted micro-courtyard is located beyond the shower area. Smart features include spray foam insulation, Navien tankless water heaters, and a Mitsubishi VRF HVAC system. — M.S.

“The space-making skill that’s reflected here differentiated this house from others. The detailing considers the exteriors in a profound way.” – Juror Timothy Lock

Click here for all of the 2017 Builder’s Choice/Custom Home Design Award winners.

From the architects. The last property on a dead-end street, the Farley Trail residence injects a tone of modernity into this otherwise traditional neighborhood. An abstract, two-story bar provides a buffer to neighboring future development, as the plan defines a private landscape as the center of this family home, where an effortless connection to the out-of-doors is invited from the public rooms of the house. Meandering through a grove of Live Oaks, the visitor follows the curve of a vertical screen into a carefully choreographed sequence of spaces. Here, great effort is made to simultaneously define discrete rooms while at the same time encourage a strong sense of continuity throughout. Uninterrupted soffits and Egyptian Desert Sand limestone floors carry from indoors into the landscape to establish connection between interior and exterior. Finely detailed Walnut screens punctuate the interior while purpose made furniture and a rich material palette provide points of stasis against the omnipresent pull of the outside. Under the consistent ceiling plane, a sunken living room is further defined by a floating Venetian plaster (embedded with mica) and waxed steel fireplace, Walnut screen, and a custom, inset davenport. Behind the screen, an acid etched glass backsplash is animated by its shadows, while Walnut cabinets, banquet and a live-edge table, and Calacatta quartzite countertops define a gracious open kitchen. Upstairs, a generous master suite presents an unexpected sense of vista and view, while the master bathroom defined by Silverthorn travertine slabs, Calacatta Lincoln marble countertops, and a planted micro-courtyard beyond the shower room offers a luxurious private refuge.

Upcoming Events

  • Design Smarter: Leveraging GIS, BIM, and Open Data for Better Site Selection & Collaboration

    Live Webinar

    Register for Free
  • Slate Reimagined: The Surprising Advantages of Slate Rainscreen Cladding

    Webinar

    Register Now
  • The State of Residential Design Today: Innovations and Insights from RADA-Winning Architects

    Webinar

    Register for Free
All Events