Falcon Ledge Residence

Project Details

Project Name
Falcon Ledge Residence
Location
AustinTexas
Project Types
Single Family
Project Scope
New Construction
Project Status
Built
Year Completed
2022
Size
3,813 ft²

Project Description

This project was selected as a Merit winner in the 2023 Residential Architect Design Awards, Custom Home / More Than 3,000 Square Feet category.

“[The residence] is unapologetically just landing on the ground [without feeling] cumbersome.” —Juror Benjamin Anderson

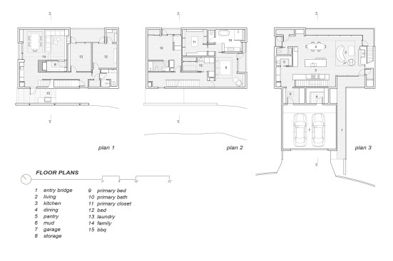
In the still-ravenous housing market of Austin, Texas, even nontraditional plots of land have potential. So, when faced with a precipitously sloped lot, locally based Alterstudio Architecture built up. The resulting 3,813-square-foot, single-family project—dubbed the Falcon Ledge Residence—leverages this challenging incline to the benefit of its vertically oriented volume, allowing clients to immerse themselves under, inside, and above the thick Texas foliage.

Entered via a bridge to the uppermost of three minimalist levels, the residence’s top floor offers a two-car garage, a living room, and a dining room. Two bedrooms rest on the middle floor while two more bedrooms and a family room are carved into the lowest level, all studded with operable windows that allow for ample cross ventilation and breathtaking vistas of the surrounding greenery.

Alterstudio also designed Falcon Ledge to rest lightly on the environment it celebrates, cocooning the project in a continuous airtight envelope clad in vertical steel panels. Deeply set glazing mitigates solar heat gain while solar panels cancel out the house’s energy demands.

PROJECT CREDITS
Project: Falcon Ledge Residence, Austin, Texas.
Architect: Alterstudio Architecture, Austin, Texas. Kevin Alter; Ernesto Cragnolino, FAIA; Tim Whitehill; Haifa Hammami (Director of Interiors); Matt Slusarek, AIA (Project Architect); Elizabeth Sydnor, AIA (Project Architect)
Interior Designer: Haifa Hammami, Alterstudio Architecture
Mechanical Engineer: Kristof Irwin, Positive Energy
Structural Engineer: Samuel Young PE, MJ Stuctures
General Contractor: Matt Sitra, Matt Sitra Custom Homes
Landscape Architect: Aleman Design Build
Geotechnical: Capital Geotechnical Services

MATERIALS AND SOURCES
Appliances: Miele; Perlick; Grohe; Scot; Wolf; Lynx; Delta; Whirlpool
Bathroom Fixtures: Toto; Lacava; DADOquartz; Cocoon; Studio Piet Boon; Kohler; AquaBrass
Cabinets: Kingwood Fine Cabinetry
Countertops: Dekton; Metroquartz; Giotto; Soapstone
Exterior Wall Systems: Central Texas Metal Roofing Supply Co.
Fabrics and Finishes: Kravet
Flooring: Kristynik Hardwood Flooring; Waterworks; Daltile
Furniture: Herman Miller; Tacchini; Rug Company; Knoll; B&B Italia; Juniper; De La Espada; Expormim
Hardware: Emtek; MadeMeasure
Kitchen fixtures: Julien; California Faucets; Riobel
Lighting: Ben & Aja Blanc; Luceplan; Koncept; Gubi; D’Armes
Paints and Finishes: Farrow and Ball, Sherwin Williams, Rubio Monocoat, Tadelakt (Plaster)
Roofing: Central Texas Metal Roofing Supply Co.
Wallcoverings: Scalamandre; Hygge & West
Windows and Doors: Lincoln Wood Products; Velux America; Maverick Door and Millwork

Upcoming Events

  • Design Smarter: Leveraging GIS, BIM, and Open Data for Better Site Selection & Collaboration

    Live Webinar

    Register for Free
  • Slate Reimagined: The Surprising Advantages of Slate Rainscreen Cladding

    Webinar

    Register Now
  • The State of Residential Design Today: Innovations and Insights from RADA-Winning Architects

    Webinar

    Register for Free
All Events