Extension to Secondary School, Ireland

Project Details

Project Name
Extension to Secondary School, Ireland
Location
RosmucGalwayIRELAND
Project Types
Education
Project Scope
Addition/Expansion
Shared By
Paul Dillon Architects
Project Status
Built
Year Completed
2016

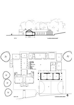
Project Description

The project provides three new classrooms and three new shelters for a small rural secondary school on the west coast of Ireland. Externally, the shelters are intended as social areas to wait before and after school, or eat lunch. Internally, a folding wall allows the joining of two classrooms to provide the school with its only assembly room, which also serves as a meeting place for the local community.

Upcoming Events

  • Design Smarter: Leveraging GIS, BIM, and Open Data for Better Site Selection & Collaboration

    Live Webinar

    Register for Free
  • Slate Reimagined: The Surprising Advantages of Slate Rainscreen Cladding

    Webinar

    Register Now
  • The State of Residential Design Today: Innovations and Insights from RADA-Winning Architects

    Webinar

    Register for Free
All Events