EWE & Bursagaz Headquarters

Project Details

Project Name
EWE & Bursagaz Headquarters
Location
BursaTURKEY
Architect
Tago Architects
Project Types
Office
Project Scope
New Construction
Shared By
Tago Architects
Project Status
Built
Year Completed
2016
Style
Modern
Team
Architect: Gokhan Aktan Altug

Project Description

EWE & Bursagaz Headquarters designed by Tago Architects, an Istanbul based architectural studio, shows an eco-friendly approach by integrating renewable energy systems into architectural design.
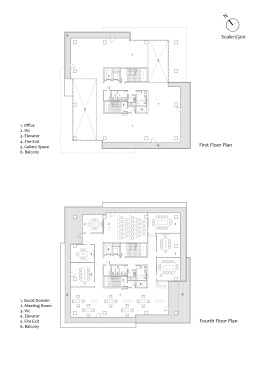
The EWE & Bursagaz Head Office building is the headquarters of a local natural gas distributor located in Bursa, one of the biggest cities of Turkey. The building has a 820 m² of plot area and approximately 9500 m ² of building area. It consists of 7 floors and 3 basement floors. The offices are officially opened to use in May 2016. The architectural design is based on integrating renewable energy systems to architecture meeting the expectance of a prestigious headquarters building of the client. The project is also based on building up a positive relationship between these energy saving systems and office life.
The design itself is a composition of different prisms with voids and transparent surfaces coming together creating the impression of one big exploded cube. Each prismatic volume ends with an open terrace that serves the office workers. The terraced roof is covered with solar energy panels which also serve as shading elements creating a sophisticated semi-open space.
In this project, it was very important to create a high quality work environment so we challenged the traditional double-skin facade section of the building in order to also offer shaded balconies that surround the office space. The one outer skin is arranged using modular BIPV panels, while the other using painted glass shadings. When these two come together, they account for an irregular rhythm of shadows on the interior of the building and create a light controlled comfortable office spaces.
The project is nominated for Leed Platinium with energy saving and environmental friendly properties. All the water and electricity consumption is controlled by using automated systems. The reusage of rain end drain water is provided in mechanical systems The materials used in the construciton or decoration is selected according to international norms that green buildings acquire. The pv panels on the facade and wind tribüne at the roof is expected to supply the % 3 of electricity of the building.
Credits
Project Name: EWE & Bursagaz Headquarters
Architectural Design Office: TAGO Architects
Designer: Gokhan Aktan Altug
Design Team: Muge Eker Eryayar, Mevlut Duymaz, Mete Kiyan, Seda Genc Yildirim, Emre Ertugrul, Emre Kurbak, Eser Gungor
Client: Enervis Enerji Servis Sanayi A.Ş.
Project Location: Bursa / Turkey
Project Type: Office Building
Total Project Area: 9.500 sqm
Project Year: 2012-2013
Construction Year: 2013-2016

Upcoming Events

  • Design Smarter: Leveraging GIS, BIM, and Open Data for Better Site Selection & Collaboration

    Live Webinar

    Register for Free
  • Slate Reimagined: The Surprising Advantages of Slate Rainscreen Cladding

    Webinar

    Register Now
  • The State of Residential Design Today: Innovations and Insights from RADA-Winning Architects

    Webinar

    Register for Free
All Events