Evoque Olazábal

Project Details

Project Name
Evoque Olazábal
Location
Olazábal y Triunvirato, Villa Urquiza, Buenos AiresBuenos AiresCABAARGENTINA
Architect
MSGSSV
Project Types
Multifamily
Shared By
MSGSSS
Project Status
Built
Year Completed
2019
Team
Project: Flora Manteola
Project: Javier Sánchez Gómez
Project: Josefa Santos
Project: Justo Solsona
Project: Joaquín Sánchez Gómez
Project: Diego Solsona
Project Manager: Damián Vinsón

Project Description

15 storys building and garden terrace.
Location: Villa Urquiza, Buenos Aires

Project: MSGSSS architects
Manteola, Sánchez Gómez, Santos, Solsona, Vinson architects
Damián Vinson project manager

Developer: URBANIA – COMPANIA BUENOS AIRES

Project Management: SYASA
Structure: AHFSA Ing. Alberto Fainstein

Construction: OVERCON

Surface: 16000 sqm
Project Year: 2013
Construction year: 2015-2019

Project description

It is a residential building, offices, professional studios and commercial premises, all uses compatible with the place. Its aesthetics and building morphology reconcile with the environment and its own needs.

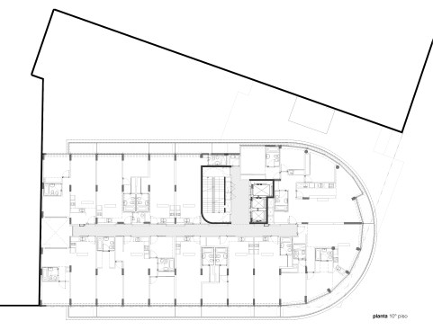
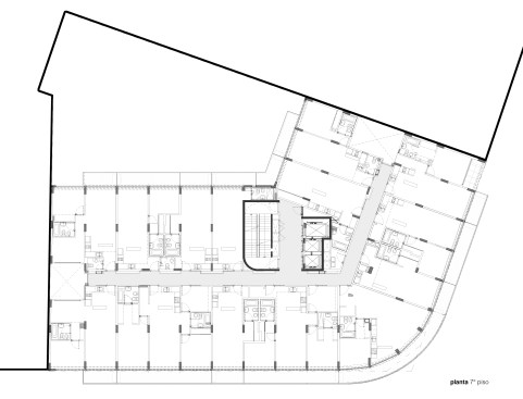
The building consists of 15 floors and 2 sub floors. With a base of eight business premises, an immediate level with common studies and services that open to the green lung. The upper floors from the 2nd to the 14th are intended for residences of 1, 2 and 3 rooms, while on the terrace there is an upper pool and solarium garden and grills. In total there are 160 functional units and 76 garages, located in 2 subsoils together with storage and technical areas.
The project was developed with the idea of generating a volumetry with subtle movements and a lot of material synthesis that make up its architecture and relate it to the site.
The architecture of this building poses a set of horizontal lines of longitudinal balconies that shape the presence of the corner as a landmark on the one hand, with its representative curved shape and on the other, when rising at the top over the lines that give continuity to the facade over Olazabal. A kind of significant bow is formed for the neighborhood.
This is a facade operation that allows you to have a relationship with its edges, but in turn stand out subtly and have your own identity.
The access operation with the molding of the corner curve, which is introduced under the significant semi-covered under the Olazábal facade. It has a transparency towards the expansion lung and common garden of the residences located on the 1st floor generating visual permeability between the street and the center of the block.
From the aesthetic point of view, the building takes the composition of horizontal lines of the balconies and the curve as main themes, but at the same time variations in the design of balconies and cornices are used to lighten the built mass and mark differences in height They provide scale with respect to your environment.

Upcoming Events

  • Design Smarter: Leveraging GIS, BIM, and Open Data for Better Site Selection & Collaboration

    Live Webinar

    Register for Free
  • Slate Reimagined: The Surprising Advantages of Slate Rainscreen Cladding

    Webinar

    Register Now
  • The State of Residential Design Today: Innovations and Insights from RADA-Winning Architects

    Webinar

    Register for Free
All Events