Estes House

Project Details

Project Name
Estes House
Project Types
Custom
Project Scope
New Construction
Shared By
babaiah
Project Status
Built
Room or Space
Other

Project Description

2003 RADA
Custom / 2,000 To 3,500 Square Feet / Grand

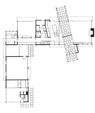
A Greenhouse formerly on the site inspired the layout for architect Jim Estes’ house, and its materials draw from utilitarian New England structures. When the greenhouse was abandoned in the 1950s, the site went completely wild. “Every middle-aged person in this area spent their childhood throwing stones at the windows,” Estes says.

The house’s long, low profile is punctuated by two towers–one for the daughter’s bedroom and another for the apartment bedroom. The entry corridor slices through the house along the axis of the old greenhouse, but Estes tilted the house 12 degrees to get a better angle on the sun.

Throughout, elements such as the exposed rafters and concrete floors with radiant heat create a look that’s rich, but not too precious. “An epiphany was seeing Bill Murray in ‘Caddyshack’ cleaning his house with a leaf blower,” Estes says. “In a joking way, it became one of the parameters of the design.” The judges commented that this is “a good house, beautifully executed. The architects knew when to say when.”

Upcoming Events

  • Design Smarter: Leveraging GIS, BIM, and Open Data for Better Site Selection & Collaboration

    Live Webinar

    Register for Free
  • Slate Reimagined: The Surprising Advantages of Slate Rainscreen Cladding

    Webinar

    Register Now
  • The State of Residential Design Today: Innovations and Insights from RADA-Winning Architects

    Webinar

    Register for Free
All Events