Ermanos Craft Beer and Wine Bar

Project Details

Project Name
Ermanos Craft Beer and Wine Bar
Location
220 N 4th AveTucsonAZ85705
Project Types
Shared By
Rob Paulus
Project Status
Built
Year Completed
2015
Style
Modern
Size
3,200 ft²
Team
Developer: Mark Erman
Contractor: McManus Construction
Mechanical Engineer: KC Mechanical Engineering
Electrical Engineer: EDG West
Food Service Plan: Arizona Restaurant Supply
Photographer: Liam Frederick - Tom Reich
Room or Space

Project Description

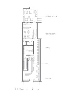
The Ermanos bar and restaurant transforms a 1926 building interior into a modern environment that marries craft food and drink with repurposed textures and materials. Two brothers, whose last name is Erman, envisioned a swank and relaxed environment that would honor the historic structure while establishing desirable social gathering spaces. With this point of departure, the design team focused its attention to exposing and re-using the existing material palette of brick and wood with natural and modern lighting energizing the space to be relevant for today. Downtown Tucson is in an urban renaissance and Ermanos plays an important part in re-purposing and re-energizing the inner city. By deconstructing and reconstructing the old we in turn give new life to our community with an architecture that is honest and deferential to its historic roots. A variety of areas are created in the ‘shotgun’ space from the main bar near the entry, more formal dining in the middle and finally the informal tasting room at the rear of space. Re-use is a common theme throughout the design. Rough surfaces of the existing building, old brick and rough sawn wood trusses, are exposed and augmented with insulation in between the top chords that breaks up and controls sound within the space to promote a conversation friendly, social environment. Rough sawn lathing strips, that formerly held the ceiling plaster, are re-used as vertical surfaces of the kitchen and bathroom enclosures as well as the front of the bars. Vintage 2×4's taken from the ceiling structure are cut down and planed into the table tops, shelving and smaller bar of the tasting room.

Upcoming Events

  • Design Smarter: Leveraging GIS, BIM, and Open Data for Better Site Selection & Collaboration

    Live Webinar

    Register for Free
  • Slate Reimagined: The Surprising Advantages of Slate Rainscreen Cladding

    Webinar

    Register Now
  • The State of Residential Design Today: Innovations and Insights from RADA-Winning Architects

    Webinar

    Register for Free
All Events