Erasmus Campus Student Housing

Project Details

Project Name
Erasmus Campus Student Housing
Location
Burgemeester OudlaanRotterdam NETHERLANDS
Architect
Mecanoo
Project Types
Other
Project Scope
New Construction
Shared By
Mecanoo architecten
Project Status
Built
Year Completed
2018
Style
Modern

Project Description

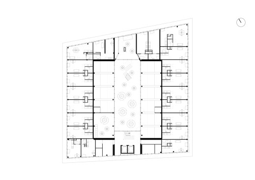
The eight-storey complex accommodates 281 studio units for international students. A central courtyard brings light and air into the heart of the building and extends as an internal street, connecting the complex with the campus’s street network. On both ends of the building, this central open space leads to a generous lobby. The courtyard also provides access to individual rooms, the collective study space, a launderette, the concierge’s office and bike parking.

The transparent plinth of the 25-metre-high building contains rooms with areas between 20 and 40 square metres. These units have four-metre-tall ceilings, allowing for the addition of a mezzanine-level sleeping space with a washroom and toilet underneath. The rooms on the upper storeys vary in size from 22 to 24 square metres. On the roof, a collective terrace with a wooden deck and benches offers a meeting place with a generous view of the campus where students can enjoy a drink together, lay in the sun or organize a party.The student housing complex has a classical subdivision of plinth, body and crown. The facade is wrapped in gold-tinted aluminium panels. Changing daylight creates a play of shadows along the harmonica-like pleated facade panels, which gradually vary from gold to silver when viewed from different angles. To give the building’s crown a subtle accent, the pleated pattern is reversed on the top level.

Next to each window, the aluminium fold protrudes outwards, invisibly integrating acoustically attenuated ventilation. That way, fresh air can enter while traffic noise is blocked. The entire building is circular and was realised within one year, which was made possible by prefabricating the structure and facade elements, including the windows. Thanks to the efficient construction process, the building was ready to accommodate new students by the beginning of the academic year.

Upcoming Events

  • Slate Reimagined: The Surprising Advantages of Slate Rainscreen Cladding

    Webinar

    Register Now
  • The State of Residential Design Today: Innovations and Insights from RADA-Winning Architects

    Webinar

    Register for Free
  • Specifying Smarter with Copper-Clad Aluminum (CCA) Metal-Clad Cable

    Webinar

    Register for Free
All Events