Ellmann Residence

Project Details

Project Name
Ellmann Residence
Location
Grand HavenMI
Project Types
Shared By
dmadsen
Project Status
Built
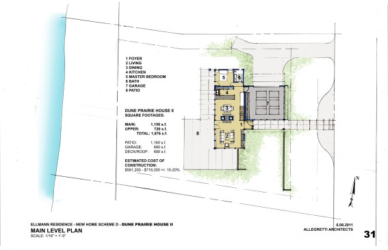
Size
2,800 ft²

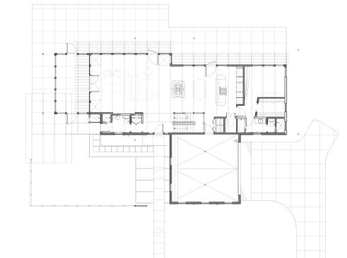
Project Description

The owners of a circa 1950’s home that was being consumed by the moving sand dunes along Lake Michigan wanted to raise their home or build a new home that would not only stand the test of aesthetic time, but also temporarily survive the powerful vicissitudes of the environment.
With the assistance of the Michigan Department of Environmental Quality as well as the consulting civil engineer and the City of Grand Haven Zoning Department, a natural soil stabilization site plan was developed. It was based on implementing erosion studies, sand screen walls and planting indigenous, drought tolerant landscaping and elevating the floor line of the home by three feet. The screen walls, the low profile of the home and the use of sand trapping marrum beach grass all help to create a wind shadow buffer around the home to reduce the velocity of blowing sand and subsequent erosion and accretion.
From a client’s perspective, the owner wanted to minimize the cutesy stylistic baggage which consumes most trophy “cottage” residences, and the with Architect created a home with simple lines focused on the lake view and other natural elements in the surrounding environment. Sustainable energy requirements on a budget directed the design decisions regarding the SIPs panel insulation, energy systems including geothermal, roof shading, insulation systems, lighting and other detailing. Easily constructed rectangularly linear, the home harkens back to mid century modern pavilions with present day environmental sensitivities in harmony with the site.
The interior FSC Douglas Fir wood ceilings were unfinished as much of the other wood within. The home window trim was eliminated as were many high end fixtures and systems, giving the owner a home that significantly exceeded the functional and aesthetics qualities of the old home at a comparable renovated home cost.

Upcoming Events

  • Design Smarter: Leveraging GIS, BIM, and Open Data for Better Site Selection & Collaboration

    Live Webinar

    Register for Free
  • Slate Reimagined: The Surprising Advantages of Slate Rainscreen Cladding

    Webinar

    Register Now
  • The State of Residential Design Today: Innovations and Insights from RADA-Winning Architects

    Webinar

    Register for Free
All Events