Elizabeth Residence

Project Details

Project Name
Elizabeth Residence
Location
AustinTX
Project Types
Shared By
dmadsen
Project Status
Built
Size
2,051 ft²

Project Description

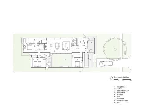
Designed to embrace a lifestyle that easily moves between inside and out with an aesthetic that values serendipity above composition, this highly efficient home takes maximum advantage of the pleasures of living in one’s own private enclave.

A sculpted concrete wall highlights the sinuous lines of a Blue Atlas Cedar and lends a sense of mystique, while a generous front porch signals a gregarious presence to the neighborhood. Once inside, the courtyard expands the perceived size of its adjacent rooms and provides rich interior environments caught between a communal center and discrete external circumstances.

Situated on an undersized lot in a dense context of modest homes, one-off stores and restaurants, this house is intended as an economical alternative to providing privacy while maintaining a direct connection to the out-of-doors. Constructed for $173/sf, the Elizabeth Street House utilizes a slab-on-grade foundation, conventional framing, and emphasizes natural light and ventilation.

Upcoming Events

  • Build-to-Rent Conference

    JW Marriott Phoenix Desert Ridge

    Register Now
  • Reimagining Sense of Place: Materiality, Spatial Form, and Connections to Nature

    Webinar

    Register for Free
  • Homes that Last: How Architects Are Designing a Resilient Future

    Webinar

    Register Now
All Events