EHA Family Trust

Project Details

Project Name
EHA Family Trust
Location
WilsonWY
Project Types
Shared By
dmadsen
Project Status
Built
Size
7,334 ft²

Project Description

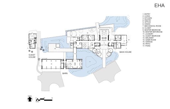
The project was sited on a low lying wetland that demanded consideration due to a high water table. The solution to this problem was to elevate the house three feet above existing grade and to utilize an insulated slab on grade to avoid the probability of fostering mold growth in a crawl space. The Architectural water features we used to enhance the project while at the same time provided positive drainage.

Additionally, the client wanted to avoid remove any of the mature trees on the site and still capture the view to the mountain range to the north. Careful siting allowed both objectives to be attained. Low energy consumption was a goal and this was attained utilizing an open loop ground source heat pump for both heating and cooling. Indoor temperatures are conserved utilizing R-40 and R-65 wall and roof assemblies.

Carbon footprint issues were addressed by utilizing 100% reclaimed material for the exterior siding and otherwise specifying materials that required no maintenance ie: cor-ten roofing and fascia detailing. New wood that was used received a water soluble “lifetime” finish that slowly weathered to a protective base coat over time. Wood sash windows of teak further reduced the exterior maintenance issues.

Interior finishes were selected for their low VOC content as well, with all casework being finished in an organic vegetable based oil material. Renewable bamboo is utilized throughout the house as well as a ceiling material. Electrical consumption was reduced by specifying LED technology in all of the public spaces and high output halogen light elsewhere.

Upcoming Events

  • Design Smarter: Leveraging GIS, BIM, and Open Data for Better Site Selection & Collaboration

    Live Webinar

    Register for Free
  • Slate Reimagined: The Surprising Advantages of Slate Rainscreen Cladding

    Webinar

    Register Now
  • The State of Residential Design Today: Innovations and Insights from RADA-Winning Architects

    Webinar

    Register for Free
All Events