Edgewater Condo Kitchen

Project Details

Project Name
Edgewater Condo Kitchen
Project Types
Single Family
Project Status
Built
Year Completed
2013
Size
2,000 ft²

Project Description

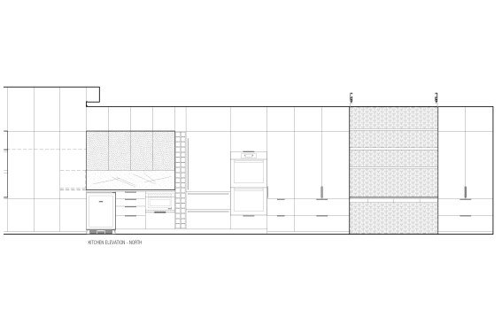
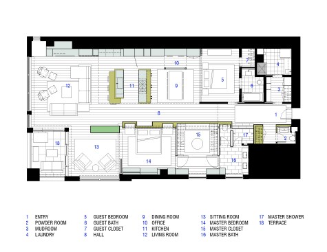
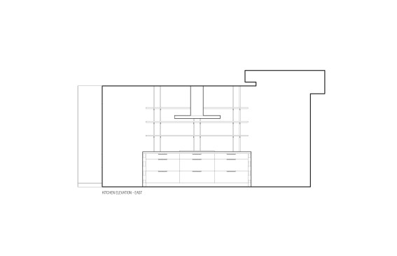
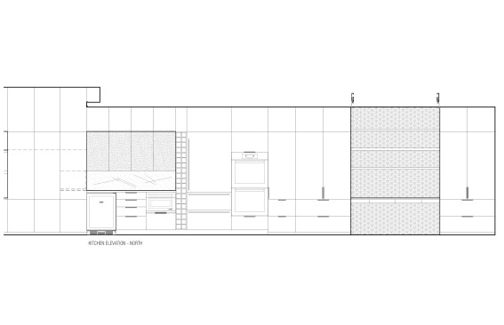
When a young couple commissioned an architecture firm to design their condominium on the edge of an urban neighborhood, their requests were simple, yet firm. They wanted a clean, minimal environment that combined warmth with a rough, industrial aesthetic. And, unlike most condominium layouts, they didn’t want the dining area situated next to the living area. Challenged by the rectangular, 2,000-sq. ft. shell, the team of architects and designers created the kitchen to divide, yet still reference, the living room and dining area. To allow the kitchen to stand alone as its own space, the team used materials—not walls—to define the area. Conceiving of the kitchen as a solid piece of oak reclaimed from the depths of the St. Lawrence Seaway, a material used to define and divide spaces in other parts of the condo, the team “carved” away the wood to create the kitchen space, “cut it off” to create countertops, and “pulled it apart” to reveal white drawer-fronts to match custom cabinetry. To keep the space open and illuminated by light from the nearby urban lake, the designers created a pair of islands, each with its own character that reflects the adjacent spaces. The island that faces the living room features a low, sushi-style bar that creates separation without obstructing the lake views. The island that faces the kitchen features shelving and an extra-deep counter that serves as a buffet. Industrial-style steel shelving with doubled standards defines the back of the kitchen while still allowing maximum transparency to the dining room beyond. A small counter provides additional workspace while cabinetry on the north wall houses and conceals appliances and further unites the living room, kitchen, and dining room. By meeting and exceeding every expectation, the team created a kitchen as distinctive and stylish as the clients.

Upcoming Events

  • Design Smarter: Leveraging GIS, BIM, and Open Data for Better Site Selection & Collaboration

    Live Webinar

    Register for Free
  • Slate Reimagined: The Surprising Advantages of Slate Rainscreen Cladding

    Webinar

    Register Now
  • The State of Residential Design Today: Innovations and Insights from RADA-Winning Architects

    Webinar

    Register for Free
All Events