Edgewater Condo

Project Details

Project Name
Edgewater Condo
Location
MinneapolisMN
Project Types
Single Family
Project Status
Built
Year Completed
2013
Size
2,000 ft²

Project Description

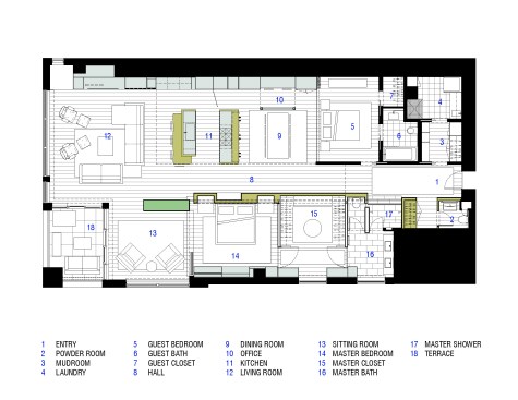
The clients purchased a raw shell in a contemporary condominium and commissioned the architects to design a space that was clean, minimal, and warm with elements of a rough, industrial loft. Challenged to create both private and public areas within the rectangular space, the team of architects and designers used the art of conceal and reveal to plan and program the space. To bring light deep into the rectangular space, the architects eschewed full-height walls in favor of blackened steel shelves and dividers made of acid-etched glass. To create optimum functionality, every cubic inch of available space was programmed. Along the two long walls of the shell, glossy, enameled white cabinetry encloses the television, the clients’ wine collection, the refrigerator, a home office, and storage space. In the master suite, custom cabinetry and a generous closet provide additional storage. Working closely with an interior designer, the architecture team brought warmth and character to the space with a dramatic wall of wood reclaimed from the depths of the St. Lawrence Seaway, floors made of hand-scraped European oak, extraordinary handmade tiles, exquisite wallpaper, and other masterful touches. Finished with the couple’s art and furniture, the space is a unique and personal reflection of the couple’s distinctive style.

Upcoming Events

  • Design Smarter: Leveraging GIS, BIM, and Open Data for Better Site Selection & Collaboration

    Live Webinar

    Register for Free
  • Slate Reimagined: The Surprising Advantages of Slate Rainscreen Cladding

    Webinar

    Register Now
  • The State of Residential Design Today: Innovations and Insights from RADA-Winning Architects

    Webinar

    Register for Free
All Events