Ed Kaplan Family Institute for Innovation and Tech Entrepreneurship

Project Details

Project Name
Ed Kaplan Family Institute for Innovation and Tech Entrepreneurship
Location
3300 S Federal StChicagoIllinois
Project Types
Shared By
Madeleine D’Angelo
Project Status
Built
Year Completed
2018
Style
Modern
Size
72,000 ft²

Project Description

This article appeared in the September 2020 issue of ARCHITECT as part of expanded coverage of the 2020 AIA Architecture Awards.

John Ronan Architects managed to balance invention and reverence in its design for the Ed Kaplan Family Institute for Innovation and Tech Entrepreneurship, all while going to toe-to-toe with a master of Modernism. Located in the firm’s hometown of Chicago, the building is the latest addition to the Illinois Institute of Technology. Designed by Ludwig Mies van der Rohe, the landmark campus includes two of his most celebrated buildings—the Robert Carr Memorial Chapel and S.R. Crown Hall—which sit among a field of similarly austere glass, steel, and brick pavilions set in a rigorous gridiron plan.

The Ronan team responded with a simple rectangular footprint and a crisp industrial materiality that seem to come directly from the Bauhaus playbook—and then called a daring audible. In place of Mies’ muscular materiality, the Kaplan Institute’s upper story is clouded in a hazy, translucent system—not of glazing, but of inflated pillows of ETFE—that seems to hover in the air. An interlayer moves in response to the sun, changing the density of the system’s “frit”—a series of dots on the material’s surface that helps to block glare and regulate heat gain.

Inside, students (who, at press time, were slated to have access to the building this fall, when the school resumes a combination of in-person and distance learning) are greeted not with a warehouse-style studio but with an array of discrete spaces and stairs that create a decidedly un-Miesian complexity in section. The staircase on the campus side, a nod to Crown Hall’s monumental entryway, leads into a green space, putting the emphasis on tranquility and intimacy. The overall effect is a novel inversion of Mies’s Spartan grandeur—sufficiently subdued to blend in with its historic context, with a contemporary sense of functionality and warmth.

Project Credits
Architect: John Ronan Architects
General Contractor: Power Construction Company
Structural Engineer: Werner Sobek Stuttgart
M/E/P/F/P: dbHMS
Civil Engineer: Terra Engineering
Landscape: Terry Guen Design Associates
Lighting: Charter Sills
Security: Jensen Hughes
Programming: Shepley Bulfinch
ETFE Subcontractor: Vector Foiltec

Materials and Sources
Metal/glass curtain wall: Wausau
Rainscreen (terra cotta, composite, etc.): Alcoa Reynobond
Other cladding unique to this project Inflated dynamic ETFE facade: Vector Foiltec
Built-up roofing: Carlisle SynTech
Glazing/Glass: Oldcastle BuildingEnvelope, Guardian
Skylights: Carlisle SynTech
Interior glass wall partitions: Assa Abloy
Doors/Entrances: Ellison Bronze, Pittco
Metal doors/Steelcraft/Wood doors: VT Industries
Fire-control doors, security grilles: Cookson Door
Special doors Sound control, X-ray, etc: Rite
Door/Hardware/Locksets: Schlage, Best (cores only)
Closers: Parenti & Raffaelli Ltd
Paints and stains Dry erase paint: Expressions Dry Erase PaintWall coverings
Acoustical panels: Acoustical Surfaces, Inc.
Plastic laminate: Pionite, Formica, Lamin-art
Solid surfacing: Dupont Corian
Carpet: Bentley Mills
Exterior metal planks: Meiser
Office furniture: Steelcase, Turnstone, Coalesse
Reception furniture: Steelcase, Knoll
Chairs: Steelcase, Turnstone, Coalesse, Vitra, Casprini, Emeco
Tables: Steelcase, Turnstone, Coalesse, Blu Dot, Kristalia
Shop: Lista, Grainger
Tribune stair cushions: Quinze & Milan
Whiteboards: Clarus
Lighting Interior ambient lighting: Birchwood Lighting, Lithonia Lighting, Luminii, ALW
Exterior lumen facade: Luminii,Dimming system or other lighting controls Lutron Electronics, Inc.Conveyance
Elevators/escalators: Otis
Plumbing: American Standard, Chicago Faucets, Elkay,Kohler, SloanEnergy
Energy management or building automation system: Delta Controls
Other unique products that contribute to sustainability In-slab radiant: Uponor

This project has been updated since its original publication in 2015 and its recent 2020 AIA Architecture Award.

FROM AIA:

In the heart of Mies van Der Rohe’s historic Illinois Institute of Technology campus, the Family Institute for Innovation and Tech Entrepreneurship fosters collaboration and innovation among the school’s students, faculty, and alumni. Containing a wide array of collaboration spaces for the school’s project-based experiences, this open and light-filled building embodies its synergistic and interdisciplinary approach to educational initiatives.

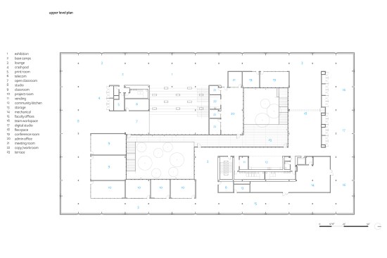
The design team envisioned the building as a hybrid of campus space and building and organized it around two open-air courtyards. Visitors enter through these courtyards, promoting chance meetings and the free exchange of ideas across school departments. The two-story, glazed courtyards draw natural light deep into the building, promoting an airy interior and a continuous connection with nature while supporting the institute’s storm-water management strategy.

Circulation inside the institute is indirect and overlapping. Large floor plates were implemented to increase visual connection across spaces and develop a feeling of a single community of users. Its interior spaces, primarily large and adaptive, can accommodate a wide range of uses. Project and meeting spaces that require acoustic isolation are enclosed by demountable partitions that can be reconfigured over time, maintaining the building’s flexibility.

Overall, the design is forward-thinking in its approach to sustainability. The institute’s second floor, which cantilevers over the ground floor to provide shading, is wrapped in a dynamic facade of ETFE foil cushions that vary the amount of solar energy entering the building through a sophisticated pneumatic system. The entire facade is controlled by an automated system and adapts to shifting weather and daylight in real time to balance energy use and daylight potential.

At just 1 percent of the weight of glass, the foil gives the building a cloud-like appearance. Wrapped around clear acrylic rods at the building’s corners to further enhance its lightweight appearance, it also makes sly references to the importance of corners in van Der Rohe’s body of work. The rest of the institute’s systems are nearly as advanced. Water-filled tubing enclosed in a concrete-filled metal deck provides heating and cooling, while the courtyards are its eyes and lungs to promote natural light and ventilation.

The institute opened in the fall of 2018 to acclaim from the university and public alike. By promoting a curiosity, an entrepreneurial mindset, and a bias towards action, the building has become an important recruitment tool for faculty and students.

Project Credits:
Project: Ed Kaplan Family Institute for Innovation and Tech Entrepreneurship
Architects: John Ronan Architects
General Contractor: Power Construction Company
Engineer – Structural: Werner Sobek Stuttgart
Engineer – MEPFP: dbHMS
Engineer – Civil: Terra Engineering
Landscape: Terry Guen Design Associates
Lighting: Charter Sills
Security: Jensen Hughes
Programming: Shepley Bulfinch
ETFE Subcontractor: Vector Foiltec

FROM THE ARCHITECTS:

The Ed Kaplan Family Institute for Innovation and Tech Entrepreneurship at the Illinois Institute of Technology is devoted to fostering collaboration, innovation, and entrepreneurship between IIT’s students, faculty, alumni and partners.  The building will host a variety of collaboration spaces for IIT’s project-based experiences, contain state-of-the art prototyping and fabrication facilities, and serve as the Mies campus home for the Institute of Design.  In the Kaplan Institute, the creative ideas of IIT faculty and students become meaningful innovations.

The horizontal, open and light-filled building is designed to encourage encounters between students and faculty across disciplines.  Located in the heart of IIT’s historic Mies campus, the building draws students and faculty in from all directions.  Conceived as a hybrid of campus space and building, the design is organized around two open-air courtyards through which visitors enter the building, and which serve as collision nodes for chance meetings and information exchange across departments.  These two-story glazed courtyards bring natural light deep into the floor plate, creating a spacious, airy and light filled interior and a continuous connection with nature. 

Circulation inside the building is indirect and dispersed, designed to promote collaboration and interaction.  Large open horizontal floor plates allow visual connection to multiple spaces at one time, while openings in the floor plate allow visual access from floor to floor to foster the feeling of a single collaborative community of users.

The building provides flexibly adaptive space to accommodate a wide range of interdisciplinary classes and project types.  Interior space consists primarily of large, open, flexibly adaptive spaces which can be reconfigured easily and support a wide variety of uses.  Assigned project spaces and meeting spaces which require sound isolation are enclosed with demountable partition which can be reconfigured over time, preserving the building’s future flexibility. 

The design of the Innovation Center is innovative in its own right, and forward-thinking in its approach to sustainability.   The second floor of the building, which cantilevers over the ground floor to provide sun shading, is enclosed in a dynamic façade of ETFE foil cushions which can vary the amount of solar energy entering the building through sophisticated pneumatics.  The ETFE foil is 1% the weight of glass and gives the building a light, cloud-like appearance. 

Building systems are similarly advanced:  water-filled tubing embedded in a concrete-filled metal deck converts the building’s floor structure into a radiant heating and cooling system.  Courtyards serve as the building’s “eyes” and “lungs” bringing in natural light and ventilation to create a comfortable and healthy interior environment for collaboration.

Upcoming Events

  • Build-to-Rent Conference

    JW Marriott Phoenix Desert Ridge

    Register Now
  • Reimagining Sense of Place: Materiality, Spatial Form, and Connections to Nature

    Webinar

    Register for Free
  • Homes that Last: How Architects Are Designing a Resilient Future

    Webinar

    Register Now
All Events