EcoMod

Project Details

Project Name
EcoMod
Project Scope
Renovation/Remodel
Shared By
Suren
Project Status
Built

Project Description

Affordable Housing
2013 R+D AWARDS
The University Of Virginia Is Redefining The Notion Of High-Performance, Modular Housing, Beginning In The Neighborhoods That Need It Most.

Sustainable and affordable are two words that aren’t typically seen together in the building industry. The juxtaposition is what caught the eyes of the jury as it reviewed the high-performance, modular housing design led by John Quale, an associate professor of architecture at the University of Virginia (UVa). Over the past decade, the EcoMod project has pooled the research and development efforts of more than 370 students from UVa’s architecture, engineering, landscape architecture, planning, business, and historic preservation programs. Together, they’ve ventured into merging ecology with economy, and modern design with modular construction and community partnerships.

This summer, EcoMod is wrapping up its first three modular, “commercially viable,” and affordable houses. Juror Jing Liu praised Quale’s dedication “to hold on to something so unflashy and make it happen eventually.”

Reaching this current state of imminent commercialization required the completion of several one-off housing prototypes. The first iteration of EcoMod, an energy-efficient, two-unit condominium in a low-income neighborhood of Charlottesville, Va., was realized in 2004 in collaboration with the local affordable housing organization, Piedmont Housing Alliance. The next iteration, designed and built in collaboration with Habitat for Humanity of the Mississippi Gulf Coast in 2005 and 2006 for a family displaced by Hurricane Katrina, was a steel-and-foam panel house with both passive and active energy-saving technologies. In 2009, the group realized a prototype house for Habitat for Humanity of Charlottesville that featured a super-insulated building envelope, stormwater recapture, and a photovoltaic array donated by the local utility company.

In 2011, Quale received a $2.45 million research grant to redevelop and “commercialize” the Charlottesville prototype into a replicable, economically sustainable design. Working with a Passive House consultant, a local modular homebuilder, and two nonprofit housing organizations, Quale and his students experimented with massing studies and building components in an attempt to optimize housing costs, livability, and energy performance.

To determine which building system or component to implement, the team developed a Decision Analysis Tool (see examples below), a radial chart that quantifies any number of para­meters in six categories: social, environmental, financial, technical, aesthetic, and energy. For example, after comparing the benefits of structural insulated panels (SIPs) with a more conventional double-stud wall, the team opted to combine aspects of both: SIPs on the outside plus an extra stud wall on the interior, for a three-layer wall separated by two layers of insulation.

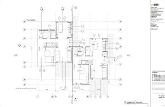
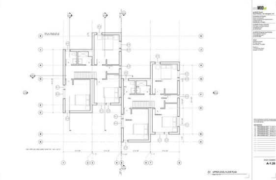
Fabricated earlier this year, the first three commercially viable modular units—all two-story, 1,800-square-foot, four-bedroom residences—are being installed on site this summer. All three houses are slated to be rented or purchased by low-income families. Two of the houses have been built to international Passive House (PH) standards at the construction and delivery cost of $105 per square foot (this does not include design fees or foundation work). One PH unit is sited in muggy South Boston, Va., while another is sited 200 miles west in mountainous Abingdon, Va., where winters are much colder. The third unit, sited next door to the South Boston PH unit, was built to the local code requirements and cost $70 per square foot—it serves as a sort of control unit. EcoMod plans to monitor the thermal and energy performance of all three units throughout occupancy to compare the effect of climate variation and to “assess the return on investment” on energy-saving components and systems.

“I don’t see anything super innovative here,” juror Bill Zahner said, but the project’s objectives “to deliver energy efficiency and build affordable housing in an area that is depressed are great.” To which juror Lawrence Scarpa noted, “Well, here’s something innovative: $105 a square foot. The project is doing more than just providing shelter: It’s really adding to the environment and community and the economy.”

The modules were fabricated just 20 miles away from the South Boston building site in the Cardinal Homes factory. Meanwhile, many of the building materials were regionally sourced: the FSC-certified red oak flooring hails from Abingdon, the bark siding from just south of the Virginia–North Carolina border, the decking lumber from in-state, and the SIPs and cementitious fiber board siding—which contains 50 percent flyash recovered from nearby coal-burning power plants—from Georgia.

EcoMod is on the verge of redefining what affordable housing means. Its high-performance modular house could proliferate in the coming years; it can now be licensed to potential homeowners, developers, affordable housing organizations, and modular home builders. Meanwhile, Quale and his collaborators are embarking on another energy-efficient renovation initiative in Charlottesville, while pursuing the dream of designing a LEED certified residential ranch that costs $65 to $70 per square foot.

Upcoming Events

  • Slate Reimagined: The Surprising Advantages of Slate Rainscreen Cladding

    Webinar

    Register Now
  • The State of Residential Design Today: Innovations and Insights from RADA-Winning Architects

    Webinar

    Register for Free
  • Specifying Smarter with Copper-Clad Aluminum (CCA) Metal-Clad Cable

    Webinar

    Register for Free
All Events