East Windsor Residence

Project Details

Project Name
East Windsor Residence
Project Types
Project Scope
New Construction
Shared By
mohan reddy
Project Status
Built
Size
4,500 ft²

Project Description

2011 RADA
Custom / More Than 3,000 Square Feet / Merit

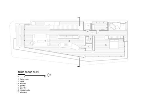
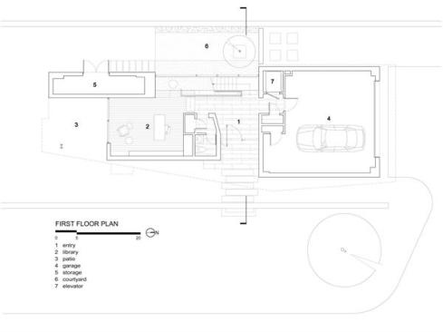
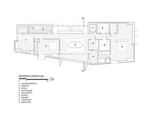
The East Windsor Residence is the answer to the question, “Does limitation yield innovative design?” Presented with a 200-foot-long triangular site and a 40-foot setback, architect Kevin Alter devised a sliver of a house that gently embraces the site’s shape. The three-level home features the kitchen, living room, and master suite on the top floor, with secondary space sprinkled across the other two levels. Its warm but contemporary palette of materials includes oak, marble, limestone, and a 16-foot ipe shading screen. “[The home] has a lot of nice moves to it,” one judge declared.

Upcoming Events

  • Design Smarter: Leveraging GIS, BIM, and Open Data for Better Site Selection & Collaboration

    Live Webinar

    Register for Free
  • Slate Reimagined: The Surprising Advantages of Slate Rainscreen Cladding

    Webinar

    Register Now
  • The State of Residential Design Today: Innovations and Insights from RADA-Winning Architects

    Webinar

    Register for Free
All Events