East Lawrence Sustainable House

Project Details

Project Name
East Lawrence Sustainable House
Location
LawrenceKansas
Architect
Studio 804
Project Types
Project Scope
New Construction
Shared By
katie_gerfen
Project Status
Student Work
Year Completed
2018
Size
2,000 ft²

Project Description

2018 Residential Architect Design Awards / Custom Home Less Than 3,000 Square Feet / Award 

“The whole project is consistent, and the modesty of space—the idea that this is what you need to live—is worth looking at. The LEED Platinum rating in an all-glass house shows that it’s doing a number of things well.” —Dirk Denison

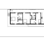
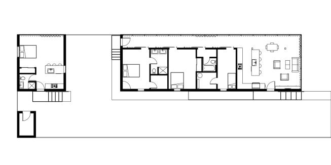
The East Lawrence Sustainable House pairs a 1,500-square-foot three-bedroom structure with a 500-square-foot accessory unit. Located on the site of a former scrapyard in East Lawrence, Kan., the double lot is at the east end of a nine-parcel subdivision where it takes advantage of a forested edge to the east and an 400-year-old bur oak tree on the property. 

Designed by Dan Rockwell and the University of Kansas’ design/build program Studio 804, the 12-foot-tall pavilions are positioned a few feet above grade to protect them from the surrounding flood plain. With their cantilevered edges, the simple rectangular volumes seem to float above the midwestern landscape. Both structures are 21 feet wide, with the main house 73 feet long and its sibling forming a perfect square. Glass is used on all the façades, with an opaque interior surface shielding the more private areas within the house. Living spaces face west, with views of the adjacent Brook Creek Park and the ancient bur oak. 

Finishes are restrained and minimal. Concrete floors offer easy-to-maintain surfaces while providing thermal mass for heating the home. Floor-to-ceiling window coverings, lighting, and thermostat are controlled via smart home technology. Rooftop solar panels provide much of the house’s energy needs, while the extensive use of repurposed materials—a hallmark of Studio 804’s approach—help the home to achieve LEED Platinum. 

The adaptable nature of the house is exemplified by the accessory structure, which can be utilized in a variety of ways—as a guest house, studio, or office. The property line along the north and west is defined by a low wall formed by welded metal grating filled with recycled crushed concrete. The driveway is similarly composed of crushed concrete to provide a permeable surface for drainage. Despite the site’s recent industrial use, it is within easy walking distance of downtown.

See the full list of winners of the 2018 Residential Architect Design Awards.

Project Credits
Project: East Lawrence Sustainable House, Lawrence, Kan.
Client: Studio 804
Designer: Dan Rockhill; Danielle Latza, Hanu Anand Madireddy, Alexa Kaczor, Elayna Svigos, Will Ehrman, Austin Bosecker, Ian Mutschelknaus, Will Siegel, Joe Schafer-Glick, Ben LaRue, Kevin Purdom, Erik Erdman, Wes Seaba, Zach Lundgren, Eric Pincus, Linda Cotter, Mark Romanoff (M.Arch. students)
Structural Engineer: Norton & Schmidt Consulting Engineers . Barney Schwabauer
General Contractor: Studio 804
LEED Green Rater: Jim Baker
Size: 1,500 square feet (house), 500 square feet (accessory dwelling unit)
Cost: Withheld

Materials and Sources
Appliances: Blomberg, Spore Modern Doorbells
Bathroom Fixtures: Toto USA, Dornbracht/Alape, Lacava, Duravit, Lixil
Cabinets: Ikea, Richlite
Countertops: Richlite
Exterior Wall Systems: Metl-Span
Flooring: Dur-A-Flex
Furniture: Retro Inferno
Glass: AGC Glass North America
Gypsum: National Gypsum Co.
HVAC: Samsung, FanTech
Insulation: 475 High Performance Building Supply, GAF
Kitchen Fixtures: Emerson Commercial & Residential Solutions
Lighting Control Systems: Convergence Partners
Lighting: ConTech
Metal: EXLTUBE
Paints/Finishes: Steel It, Valspar
Photovoltaics/Other Renewables: Solaria, Renvu
Plumbing/Water System: Bradford White
Roofing: GAF
Structural System: EXLTUBE, Simpson Strong-Tie
Wallcoverings: Richlite
Windows/Doors: Pella, Insulite Glass, Manko Window Systems, Velux Skylights, Richelieu Hardware, Schlage
Window Coverings: Altex

Upcoming Events

  • Design Smarter: Leveraging GIS, BIM, and Open Data for Better Site Selection & Collaboration

    Live Webinar

    Register for Free
  • Slate Reimagined: The Surprising Advantages of Slate Rainscreen Cladding

    Webinar

    Register Now
  • The State of Residential Design Today: Innovations and Insights from RADA-Winning Architects

    Webinar

    Register for Free
All Events