Dunza Headquarters

Project Details

Project Name
Dunza Headquarters
Location
Cumbres de las Naciones 500Corporativos Tres MaríasMoreliaMichoacanMEXICO58254
Project Types
Office
Project Scope
New Construction
Shared By
morari arquitectura
Project Status
Built
Year Completed
2016
Style
Modern
Team
Architect: Roberto Ramirez
Architect: Javier Arias

Project Description

This office project stands out by the use of minimum resources to maximize results. It’s a building defined by an honest materiality that, having a limited budget, it uses concrete precast and lattices to shape the most value element we have: the light.

It’s located from north to south in the highest part of the plot, taking advantage of the best views and the passage of the sun. The building is slightly supported on the ground by a metal structure that keeps earthworks to a minimum, reducing costs and, above all, respecting its immediate context.

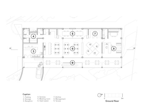
The program takes place in a grid that divides the project into three longitudinal blocks that contain and order the different uses: the first is made up of auxiliary services and spaces, the second corresponds to the working area and the third one, houses a social area that takes the shape of a large terrace.

This living space is surrounded by a concrete lattice on its south-east façade, filtering the morning light and illuminating the terrace and the lobby with amber tones, this space is dominated by a marble front desk that welcomes the visitor. As the user walks the receptions, is discovered the large central workspace, where the open plan and desks are bathed in a benign zenith light. In the bottom, the management area is located, where the north orientation allows us large openings that generate interesting panoramic views.

The constructive efficiency that rules the project is also reflected in its energy management. By the use of passive cooling strategies, we keep the use of air conditioning to a minimum, and at the same time, a sawtooth roof incorporates a photovoltaic system that generates the electrical energy consumed by the building, making the building sustainable and autonomous.

Dunza Headquarters is defined as a sober light box, that emerges from the need for a high efficiency, and at the same time seeks to create an atmosphere that allows the user to concentrate in their work, without isolating from the scenarios that enrich our experience in the world, like the passing of the sun or the afternoon wind. This project maintains that efficiency and experience, far from being incompatible, are complementary, and that it is possible to create complex workspaces, living and feeling machines that dignify and enhance the user’s daily routine.

Upcoming Events

  • Design Smarter: Leveraging GIS, BIM, and Open Data for Better Site Selection & Collaboration

    Live Webinar

    Register for Free
  • Slate Reimagined: The Surprising Advantages of Slate Rainscreen Cladding

    Webinar

    Register Now
  • The State of Residential Design Today: Innovations and Insights from RADA-Winning Architects

    Webinar

    Register for Free
All Events