Dubin and Dubin it Over

Project Details

Project Name
Dubin and Dubin it Over
Location
Highland ParkIL
Project Types
Project Scope
Renovation/Remodel
Shared By
dmadsen
Project Status
Built
Size
5,420 ft²

Project Description

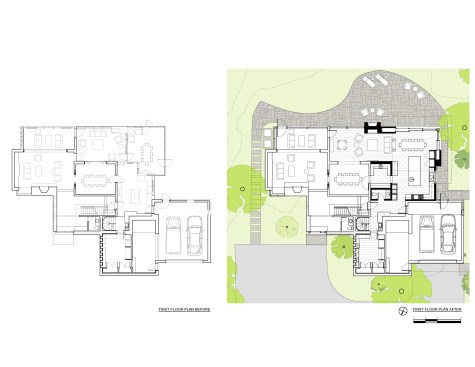
When introduced to the historic house, what resonated was its simplicity. It had an unexpected warmth and charm. Built by the grandfather of the family, designed by the Chicago firm of Dubin + Dubin, his granddaughter and her husband (and their children) desired to update the home. It was without a doubt a beautiful mid-century modern residence, although in need of some loving care. To say the least, it was going to be a sentimental project.

Their request was simple ~ “We would like to restore it to its original splendor, yet tastefully and respectfully reinvent it to fit our current lifestyle”. This would allow them to really use the house, to entertain as they did, and most importantly access the outdoors as much as possible.

The design expanded the rear of the house, opening it up to the ravine beyond, creating a tranquil and private sanctuary. Along its Southern exposure, oversized ‘Lift Slide’ Mahogany doors instantly wipe out any notion of indoors or out, exposing it to the gardens and new exterior patio.

In contrast to the original tightly squeezed and compartmentalized Kitchen, the design removed walls completely opening it up, raised the ceiling and bathed the space in sunlight. Lightly stained woods, simple painted cabinets, stainless and marble countertops and a large English Brown Oak island sit on a warm gray tile floor which grounds the new suite.

The exterior was restored including custom Mahogany windows and doors, a Master Suite exterior deck, rebuilt copper planters and restored stone and brickwork.

Now, not only is the entire Ground Level used regularly, but the family has found a new home within their old home. It is embraced and celebrated. They are loving its ‘new-ness’ all the while honoring ‘Grandpa’s house’ by respecting its mid-century roots.

Upcoming Events

  • Design Smarter: Leveraging GIS, BIM, and Open Data for Better Site Selection & Collaboration

    Live Webinar

    Register for Free
  • Slate Reimagined: The Surprising Advantages of Slate Rainscreen Cladding

    Webinar

    Register Now
  • The State of Residential Design Today: Innovations and Insights from RADA-Winning Architects

    Webinar

    Register for Free
All Events