Double Stoop House

Project Details

Project Name
Double Stoop House
Location
BrooklynN.Y.
Architect
Model Practice
Project Types
Single Family
Project Status
Built
Year Completed
2022
Size
4,000 ft²

Project Description

This project was selected as a Merit winner in the 2023 Residential Architect Design Awards, Renovation / Adaptive Reuse category.

“The interiors are beautiful. The combination of contemporary and traditional pieces, and even honestly the styling and materials … [they were] thought through.” —Juror Maija Kreishman

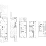
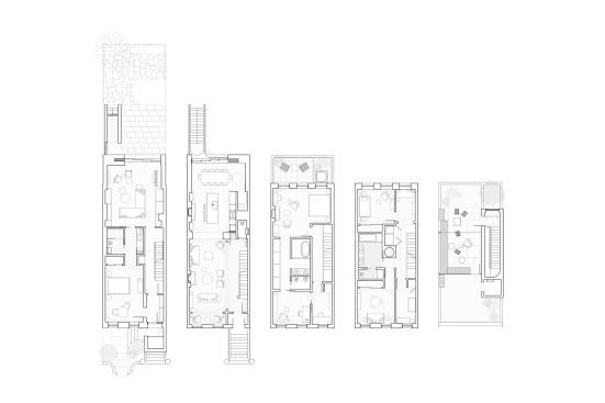
Deftly stitching together the old and the new, Brooklyn-based Model Practice addresses a family’s multigenerational needs by reconfiguring a four-story 1890s Brooklyn brownstone. Called the Double Stoop House, the 4,000-square-foot residence offers grandparents, parents, and children privacy, shared space, and easy outdoor access, providing a blueprint for communal living in the city.

Beginning with the easily accessible garden level—now the domain of the grandparents—each floor shelters a single generation of the family. Open-plan communal spaces, such as the airy living room, kitchen, and dining area, rest on the structure’s main level; parents reside on the second floor; and the children have free rein on the top floor, which is illuminated by a circular light well. The interior gracefully mediates traditional articulation with a minimalist sensibility, paying homage to the residence’s past and future.

Model Practice extended its attention to the structure’s façade, embedding the project’s multi-generational program into finely wrought brick patterning that subtly changes with each floor. The firm also added a new stoop at the residence’s rear, mimicking its classic front stoop while crafting an architectural connection between the front sidewalk, the shared living spaces, and the backyard.

PROJECT CREDITS
Project: Double Stoop House, Brooklyn, N.Y.
Architect: Model Practice, Brooklyn, N.Y. Christopher Lee, partner; Minyoung Song, partner
Interior Designer: Jesse Parris-Lamb; Amanda Jesse; Whitney Parris-Lamb; Carol Andrews
Mechanical Engineer: Engineering Solutions
Structural Engineer: Blue Sky Design
Electrical Engineer: Engineering Solutions
General Contractor: Black Square Builders
Landscape Architect: Evelyn Zornoza
Other consultants: Boro Land Surveying (Surveyor); Conversano Associates (Filing Agent)

MATERIALS AND SOURCES
Appliances: Fisher Paykel; Miele; Sub-Zero; Wolf bathroom fixtures; Vola; Dornbracht; Cheviot
Cabinets: Custom by Wolski Woodwork
Countertops: BAS Stone
Flooring: Custom finished white oak
HVAC: Mitsubishi
Insulation: Rockwool
Kitchen fixtures: Dornbracht; Franke
Lighting: Focal Point; Delta
Exterior Walls : Watsontown white clay brick
Primary Bath Solid Stone Sink : Jac Elan supplied and Paolo Costa & Custom fabricated (Cippolino Verde); BAS Stone
Metal: E.R. Butler cabinet pulls
Paints and Finishes: Benjamin Moore paint; Tadelakt plaster walls by Michelle Kole Decorative Surfaces; Forbo linoleum; Mutina Pico tiles; Cotto Manetti square terracotta tiles
Windows and Doors: Loewen Windows; Centor Screens

Upcoming Events

  • Build-to-Rent Conference

    JW Marriott Phoenix Desert Ridge

    Register Now
  • Reimagining Sense of Place: Materiality, Spatial Form, and Connections to Nature

    Webinar

    Register for Free
  • Homes that Last: How Architects Are Designing a Resilient Future

    Webinar

    Register Now
All Events