DIY Kitchen

Project Details

Project Name
DIY Kitchen
Architect
Lavenson Design
Project Types
Single Family
Project Status
Built
Year Completed
2017
Size
415 ft²

Project Description

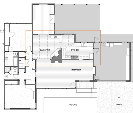
The Project was a Do It Yourself (DIY) remodel by an architect husband and interior designer wife who's parents were the original owners of the home. This was a heart felt rejuvenation of a family home from the 1950’s. The work needed to be respectful of the history there while also updating for a modern sense of space and activities. Work proceeded slowly over weekends and vacations in order to accommodate other life and work commitments. Though experienced with complex renovations for clients, they wanted to keep their own project simple and reasonably priced, so the couple used off the shelf and readily available materials, customizing them artfully and using minimal outside labor. A fundamental decision was to use IKEA kitchen cabinets, which required 1) renting a truck to haul them 200 miles from the nearest store; and 2) assembling 206 separate boxes of cabinet parts, drawer rails, special screws, etc Another fundamental decision was to cut a set of french doors at an existing window location. The structural change was minimal but the circulation change was profound, with direct access established from the kitchen to an existing outdoor patio that previously felt isolated. Interior openings were modified and the adjacent family room was remodeled too, editing and painting out the rustic woodwork and updating the original stone fireplace with a new colored concrete hearth. New oak flooring flows through both rooms. (The hearth was a DIY project as well, mixed in a wheelbarrow on tarps in the nearby living room.) A dark, woody, fluorescent lit kitchen and a wood paneled family room are now a bright modern space that dovetails into this mid century California ranch house.

Upcoming Events

  • Slate Reimagined: The Surprising Advantages of Slate Rainscreen Cladding

    Webinar

    Register Now
  • The State of Residential Design Today: Innovations and Insights from RADA-Winning Architects

    Webinar

    Register for Free
  • Specifying Smarter with Copper-Clad Aluminum (CCA) Metal-Clad Cable

    Webinar

    Register for Free
All Events