District of Columbia Public Library – Tenley-Friendship Library

Project Details

Project Name
District of Columbia Public Library – Tenley-Friendship Library
Architect
The Freelon Group
Project Types
Community
Shared By
The Freelon Group
Project Status
Built
Year Completed
2011
Size
21,472 ft²
Certifications & Designations
LEED Gold

Project Description

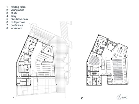
Derived from the image of an open book, the design of Washington DC’s Tenley-Friendship Neighborhood Library showcases contrasting opacity and transparency. The building’s windowless exterior on the south and west sides wraps and protects the library akin to the cover of a book. In contrast, the north and east elevations of the building exhibit a transparent, visually porous skin, welcoming pedestrians traveling along Wisconsin Avenue and Albemarle Street. Perforated vertical fins are positioned along the length of these facades, allowing for shading while reinforcing openness and accessibility. This approach provides the reading rooms and stack areas with diffused natural light and minimal glare.

The 23,000 sf program for the Library is configured as a two-story building with a partial third floor mechanical space and a roof terrace/garden. The “active and fast” elements of the program are located on the first floor while “slower and quieter” areas of the program are situated on the second floor. Enclosed elements of the program such as the workroom, toilets and meeting rooms are located to the west side of the plan, allowing the eastern half to remain open with high-ceilings in the stack and seating areas. A double-height atrium with a monumental stair serves as the nexus for all building circulation.

Upcoming Events

  • Build-to-Rent Conference

    JW Marriott Phoenix Desert Ridge

    Register Now
  • Reimagining Sense of Place: Materiality, Spatial Form, and Connections to Nature

    Webinar

    Register for Free
  • Homes that Last: How Architects Are Designing a Resilient Future

    Webinar

    Register Now
All Events