Discovery Pod Playhouse

Project Details

Project Name
Discovery Pod Playhouse
Project Types
Outbuilding
Shared By
dmadsen
Project Status
Built
Size
880 ft²
Room or Space
Outdoor

Project Description

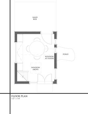
This playhouse is part of a pro-bono effort to design and build playhouses for auction. The parameters were strict – 10’ x 8’ x 11’ and capable of being moved from the auction site to the buyer’s home. It was truly a prebuilt modular home that had to fit any context, be simply constructed, and be a source of entertainment and amusement for young minds.

Inspired by Mondrian, the playhouse is elegant while still appealing to children. Inside is a loft for secret club meetings, a chalkboard wall to strategize water pistol battles and a window in the floor to observe what we had hoped would be a fish pond below the playhouse. A solar panel on the upper roof powers LED lights. The lower green roof absorbs rain water, providing insulation and creating a habitat for wildlife that can be seen from the upper windows. Many of the building materials and elements are recycled from other projects where they would have otherwise been wasted. The exterior is constructed of composite materials for low maintenance and long life of the playhouse.

The cubist block, a beautiful object, fits in well in any landscape with the knowledge that one day it may stand alone, long after children outgrow it.

Upcoming Events

  • Design Smarter: Leveraging GIS, BIM, and Open Data for Better Site Selection & Collaboration

    Live Webinar

    Register for Free
  • Slate Reimagined: The Surprising Advantages of Slate Rainscreen Cladding

    Webinar

    Register Now
  • The State of Residential Design Today: Innovations and Insights from RADA-Winning Architects

    Webinar

    Register for Free
All Events