Die Macherei

Project Details

Project Name
Die Macherei
Location
MunichGermany
Architect
HWKN Architecture
Project Types
Project Scope
New Construction
Project Status
Built
Year Completed
2022
Size
200,000 ft²

Project Description

This project was selected as a Merit winner in ARCHITECT’s 2024 Architecture & Interiors Awards, Architecture: Mixed Use category.

“What it’s bringing to the urban environment … I was kind of like, wow, they’re getting away with this, and that’s pretty impressive. And the brick exterior skin, personally I loved it.” –Juror John Frane

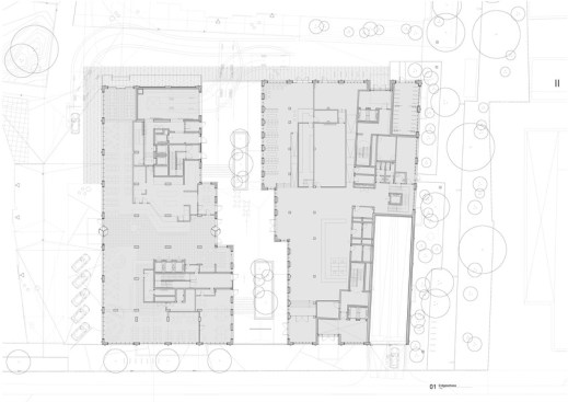
Die Macherei, Europe’s first LEED-GOLD neighborhood, is the result of a collaboration between three architecture firms. This new neighborhood features six multi-purpose buildings, including the Scandic München Macherei hotel, a Coworking Building by Design Office, retail amenities such as a grocery store, gym, restaurant, bar, and office space. Transforming a once-barren industrial area, Die Macherei has become a welcoming, vibrant, and emotionally engaging community.

The Scandic München Macherei hotel stands ten stories tall, like its neighboring buildings, and is clad in rough, earthen-brown brick. Its distinctive stacked and sculpted façade gives the impression of movement, with individual folds creating a rippling effect across the exterior.

A new pedestrian canyon separates the Scandic hotel from a Gold’s Gym with offices above. These canyons, three in total, were crucial in making the neighborhood more inviting and establishing a sense of place that extends beyond the new development. The main canyon leads to another office building and a public plaza, featuring a glossy, red-to-orange brick façade that exudes pure joy and attracts people.

The expressive use of brick pays homage to this area of Munich, historically known for its brick-making, including the bricks used in the fifteenth-century Frauenkirche. Previously, the site housed an abandoned Temmler Pharmaceutical Factory, isolated from the neighborhood. Die Macherei’s open canyon of orange brick invites people to join and experience life in this new neighborhood, which offers small stores, coffee shops, and spots to sit with a laptop.

With the opening of Die Macherei, the neighborhood’s promise of creativity and vibrancy is now available for everyone to enjoy.

Project: Die Macherei München
Location: Levelingstraße 2, 81673 München, Germany
Client/Owner: Art-Invest Real Estate Management GmbH & Co. KG and ACCUMULATA Real Estate Management GmbH

Architect:

  • HWKN Architecture
  • Lead Designer: Matthias Hollwich
  • Team Members: Jessica Knobloch-Arscott, Robert May, Martin Safar, Axelle Zemouli, Malika Yapa, Myriam Hamdi, Todd Shapiro, Laura Yang
  • OSA Ochs Schmidhuber Architekten
  • Managing partner- Fabian Ochs
  • Managing partner- Tom Fechtner
  • m3 Architekten
  • Bernhard Wolff
  • Martina Will
  • Holger Meyer Architektur
  • Managing partner- Holger Meyer

Photography credit: Klemens Renner

Construction Start Date: July 2019
Mechanical Engineer: PMI-Ing (PM Ingenieure)
Structural Engineer: BWP GmbH
Electrical Engineer: GPP Ingenieure
Construction Manager: Dreso (Drees & Sommer)
General Contractor: Dibauco (Dibag Baugesellschaft)
Landscape Architect: Studio Vulkan
Size in Square Feet: 18580.608 sqm
Cost: Confidential

MATERIALS AND SOURCES:
Fire Protection: Sprinkler system, pressure ventilation for the elevator.
Elevators: 3 passenger elevators (2.5m² / 2.5m/s) and 1 goods/firefighter elevator (2.8m² / 2.5m/s). Elevators serve continuously from the 2nd basement to the 9th floor. One passenger elevator reaches the roof.
Structural System: Panel construction with punched façade.
Air Conditioning: Partial air conditioning, individually controlled by functional area.
Windows: Sun protection glazing. External sun protection on the south side if necessary. Opening the windows is not technically necessary. Outside air supply (60m³ per hour per room) and exhaust air per room (corner rooms with double air exchange).
Windows: Sun protection glazing with external sun protection (aluminum slats) electronically controlled per room with an overarching control system. Pivot windows with a 12 cm restrictor. Opening for climate control is not necessary. Sound insulation class 5 in the 1/5 south volume. Otherwise, class 4 up to 2/3. Class 3 in the north. Double post façade in the connection area of the room partition walls for sound insulation. Window cleaning: From the inside. Unlockable restrictor + external horizontal rail at a height of 1.10 m.
Shafts: Drywall with steel crossbeams anchored in the shaft. Sound insulation with gypsum board and mineral fiber.
Floor Structure: Floating screed.
Bathroom: Prefab bathrooms.
Exterior Walls: Skeleton construction with punched façade. Executed in concrete, smooth formwork on the inside, expansion joint formation according to static concept. Surfaces of concrete components with the requirement “visible on the inside.”
Façade: Ventilated brick façade in varied colors according to the material concept on exterior walls or ETICS (External Thermal Insulation Composite System). Upper and lower sides of the cantilevered areas in brick slips or ETICS to match the exterior wall. ETICS in the inner courtyard.
Cladding: Attic cladding as ventilated brick façade with aluminum cover plate in varied colors according to the material concept. Anodized aluminum. Full thermal insulation.
Special Areas: Exterior wall in the bicycle room area: Wall and flank insulation with Tektalan 10 cm.
Exterior Doors and Windows: All façades according to building physics requirements. Thermal insulation according to ENEV 2013. Resistance class according to the neighborhood description Chapter 1. Aluminum window elements. External sun protection.
Roof Construction: All roofs as flat slabs with a slope (>2%) in reinforced concrete or semi-prefabricated slabs with in-situ concrete supplement according to static calculation. Drainage: Roof surfaces via internal downpipes. Metal flashings, gutters, and downpipes executed in aluminum or refined sheet metal. Emergency drainage via external scuppers.
Wall Cladding: Solid components: Concrete left visible without SB (Special Requirement), partially smooth plastered or spackled. Lightweight partition walls: Surface quality Q2, unless otherwise defined. Emulsion paint.
Doors: Elevator doors E90, coating according to design concept. Access doors in rental areas: Fire protection classification of all doors according to fire protection report. Tubular frame door elements, single or one-and-a-half-wing or double doors or double sliding doors with glass filling. Surrounding steel frame, clear glazing, door closer on top, possibly prepared for hold-open device with smoke detector and automatic release in case of fire, door opener. Quality standard Jansen, Forster Fuego light, or equivalent.
Ceilings: Office areas: Open “industrial” style. Technical installations painted. In case of cooling option: Cooling sails as suspended metal cooling sails with acoustic overlay.

Upcoming Events

  • Design Smarter: Leveraging GIS, BIM, and Open Data for Better Site Selection & Collaboration

    Live Webinar

    Register for Free
  • Slate Reimagined: The Surprising Advantages of Slate Rainscreen Cladding

    Webinar

    Register Now
  • The State of Residential Design Today: Innovations and Insights from RADA-Winning Architects

    Webinar

    Register for Free
All Events