Diamond Heights Renovation

Project Details

Project Name
Diamond Heights Renovation
Project Types
Custom
Project Status
Built
Year Completed
2015
Size
1,772 ft²
Team
Builder: Brendan Waters Construction, Builder

Project Description

2017 Builder’s Choice & Custom Home Design Awards
Architectural Interiors: Grand

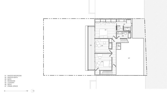
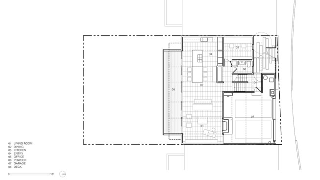
Joseph Eichler built thousands of homes, all of them embodying indoor–outdoor living, open floor plans, and integrity—both in high-quality materials and the builder’s willingness to sell his houses to anyone. When renovating the interior of one of Eichler’s 1965 houses, San Francisco–based architect Michael Hennessey tapped into this integrity: Instead of re-creating the original interior or designing something completely different, he updated the structure in the spirit of the original builder.

Pale paint coats the shiplap ceiling in contrast with the dark brown beams to highlight Eichler’s signature exposed post-and-beam construction. Charcoal gray porcelain tiles add a layer of thermal mass above radiant heated floors, even as a high-tech boiler improves the system’s efficiency. Floor-to-ceiling sliding doors made with high-performance glass further reduce the home’s energy consumption, while still resulting in a seamless connection to the outdoors. New insulation in the walls, a cool roof membrane, and a layer of rigid roof insulation—not to mention San Francisco’s temperate climate—provide enough protection to obviate the need for forced-air cooling.

Exposing the original concrete-block fireplace surround adds texture to the open living area, while natural wood panels bring visual warmth to the modern spaces. Storage fills the narrow ends of the rectangular room—one wall holds kitchen cabinets and the other a floor-to-ceiling shelving system rendered in wood and metal. A raised island with a built-in, expandable dining table projects a furniture-like feel and maintains the space’s uninterrupted flow—just one of the details that evokes the spirit of an Eichler home in contemporary form. — S.D.H.

“The level of consistency is excellent. The design decisions reflect a refined aesthetic accurate to the original palette.” -Timothy Lock

From the architects. For this interior renovation to an existing 1965 Eichler we decided to strike a balance between the positive, inherent qualities of an Eichler structure with modern improvements that enhance rather than compete with the existing building.  The existing post & beam structure is accentuated, creating a layered composition of structure, wood veneer, concrete, and tile elements.  New full-height sliding glass panels increase the energy efficiency of the building while visually expanding the space towards the distant view.  The kitchen is relocated to connect more directly with the living area, and the decks are re-built as extensions of the interior spaces.  A balance is struck between new and old in a meaningful way.

Upcoming Events

  • Design Smarter: Leveraging GIS, BIM, and Open Data for Better Site Selection & Collaboration

    Live Webinar

    Register for Free
  • Slate Reimagined: The Surprising Advantages of Slate Rainscreen Cladding

    Webinar

    Register Now
  • The State of Residential Design Today: Innovations and Insights from RADA-Winning Architects

    Webinar

    Register for Free
All Events