Project Description
The part of plot which virtually has no tree has been selected for deployment of the museum. In order not to prevent the existence of ODF monument, the building was finished behind the
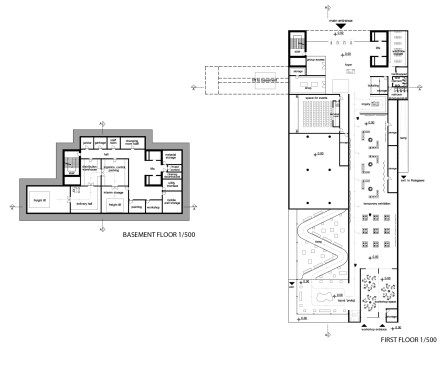
monument. The main entrance is provided via FriedrichstraBe. After entering the museum,
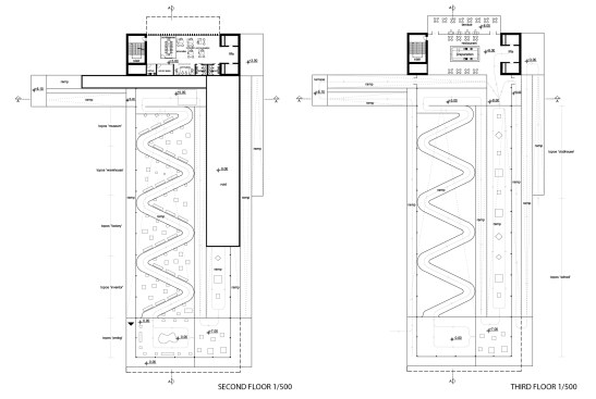
temporary exhibition hall is reached which has been designed to take place in parallel manner to KavalierstraBe. At the end of temporary exhibition, workshop space and main exhibition hall starts. Workshop space is open to use via external access from the side of ODF monument as well. Temporary exhibition hall and workshop space are completely enabled to integrate with each other thanks to operable glass division panels.
The main exhibition hall is not made up of by laying together some spaces as in classical museums. The hall is designed as a single volume with ramps facing towards park area. When entering the main exhibition hall from the temporary exhibition hall, one enters a space where all the topos can be seen.
Because design exists in every walks of life, Bauhaus has been a school that has given products about many different areas such as fashion, art, architecture, industrial design etc. It is reflection of the fact of existence of design takes place at every step of life that famous architects have designed chairs and furniture and so forth. The approach, which influences the capillaries of life, of Bauhaus school which can be summarized as ‘designing everything’ has been the determining factor in the design of main exhibition hall. The hall is a holistic space where all different design components were gathered under the same roof. All other topos from every topos can be seen. Organization of topos on the ramp can be made freely in different size since there are no dividing elements.
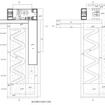
Ramp which is an element of access has been approached as the basic element which gives life to the main exhibition hall. Ramps that provide and define the direction of circulation, are exhibition spaces on which the main exhibition takes place. After prologue part at 0 level, the first four topos take place on the first ramp which leads to level of 5meters. The first ramp that measures 15.50 meters by 55 meters, has the potential to give chances to very rich exhibition arrangements by differentiating of ramp circulation route. Like climbing a mountain in a zigzag manner exhibited works can be seen at topos. Visitors have the chance to percept the space from different angles continuously thanks to the zigzagged route. They can be in a continuous visual relationship with the city and the park. After the first ramp a second ramp is reached at the level of 7 meters. Third ramp connects this level to level of 8 meters. Canteen at this level has been placed to a dominant position over FriedrichstraBe and the main exhibition hall. At the third ramp the last two topos School and Clubhouse take place. At the end of the third ramp three different exit is possible. The first route is to take the stairs or the elevators to get down to foyer and exiting to FriedrichstraBe. The second one is to exit to KavalierstraBe by taking the external ramps which are the continuation of the third ramp. The last route is to take the balcony that is actually a cantilever projecting 25 meters for getting down from the level 8 meters to 5 meters. By doing so it is possible to exiting to park from the outside of the first ramp. This cantilever balcony provides watching over park and makes an attribution to cantilever balconies of Bauhaus which were symbols of its time. By connecting two different levels the balcony which gives reference to Bauhaus cantilever balconies without imitating them but taking them as a reference, gives an authentic character to the building.
Levels reached by the ramps and topos taking place on the ramps transforms the main hall to a dynamic space. In addition to stairs and elevators exits to two different directions enrich the circulation in terms of functionality. The roof of the building is a surface which covers the main exhibition hall measures 77 meters. It will be made up of steel diagrid system. External façade frames bears the roof at the same time. The external façade is completely open to the city from three directions. Since Bauhaus takes place in every step of life, when enjoying the exhibition users are not insulated from the city, and the building is visually integrated with the city. The glasses of the façade will be low-e.
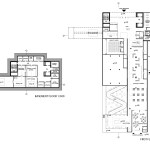
With a service elevator products coming for logistic units with trucks will be pulled downed to the level -5 meters and is placed to delivery hall. It is possible to access the main exhibition hall thanks to openable slab at level of 5 meters and to temporary exhibition hall thanks to other mechanically openable slab of foyer with the other service elevator that measures 4 meters to 5 meters from interim storage which is formed by the logistic units at basement level.