Design Studio Adaptive Reuse + Interior Buildout

Project Details

Project Name
Design Studio Adaptive Reuse + Interior Buildout
Architect
DELV Design
Project Types
Office
Project Scope
Adaptive Reuse
Project Status
Built
Year Completed
2022
Size
6,800 ft²

Project Description

This project was selected as a Merit winner in ARCHITECT’s 2024 Architecture & Interiors Awards, Interiors: Small Office Interior category.

“I liked the way they set it up, the clarity.” –Juror John Frane

A young design firm in Indianapolis has seen significant growth in recent years, both in terms of employee numbers and the scope of their work. To support this growth and maintain their collaborative, non-hierarchical structure, they needed a space that would enable continued thriving. Designing a new studio post-pandemic presented a unique challenge. Through extensive charettes, surveys, and iterative design processes, they created a space that meets their design goals and fosters ongoing productivity.

Previously housed in a beloved historic factory, the firm sought a new space that offered a similar vibe. They prioritized adaptive reuse in a vibrant neighborhood, focusing on health and wellness. The Box Factory in the newly developed North Mass District in downtown Indianapolis fit this vision perfectly. This revitalized building, adjacent to a climbing gym and café and close to cultural amenities and local food options, allowed employees to commute by bike, scooter, or on foot.

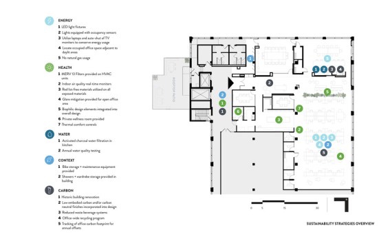
The firm’s commitment to health and wellness extended to the design and materials of their space. Each workspace is positioned to maximize access to natural light. The studio features focus booths, sit-to-stand workstations, and varied work areas, offering a range of postures from lounging to standing. Prioritizing excellent air quality, the design avoids Red List materials, includes a large steel planter wall for biophilic benefits, and uses air quality monitors. A wellness room provides privacy for nursing mothers and others needing a personal retreat.

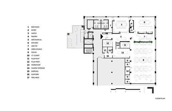
The layout of the space reflects the firm’s values. Eschewing a traditional reception desk, the open entry area leads directly into the communal studio, fostering a non-corporate atmosphere. The absence of private offices for partners or leaders encourages the quick exchange of ideas and learning among all employees. Collaboration areas adjacent to the studio, equipped with digital screens, pin-up walls, a materials workshop, focus booths, and meeting rooms, emphasize the firm’s holistic approach to design.

A single, multifunctional wall connects the psychological and physical elements of the project. This wall spans from the entry to the far side of the space, housing various functions like a coat closet, meeting room storage, refrigerator, pin-up space, and kitchen appliances. Its wood slatting and black MDF cladding provide a calm, anchoring element against the bright, open spaces. The wall seamlessly integrates with architectural and structural elements, guiding the eye through the space.

The project uses simple, honest materials. Exposed concrete and unpainted Tectum ceiling panels highlight the natural state of materials. The use of ash wood on the main wall is a nod to the local species, threatened by insect blight, serving as a tribute to its beauty.

As a carbon-neutral firm, promoting sustainable design is central to their ethos. The studio serves as a testing lab for affordable, authentic, and sustainable materials paired with high-design detailing. The design reflects a commitment to sustainability through careful material selection, water usage, recycling, and considering embodied carbon and life expectancy of materials. Although specific energy use metrics were not calculated due to the project’s scope, the firm commits to monthly carbon offsets to remain operationally carbon neutral.

In every aspect of the studio’s planning and detailing, the firm expressed its design principles, believing in empathetic, honest, beautiful, useful, and resilient design.

Project: DELV Design Studio Adaptive Reuse + Interior Buildout
Location: 1411 Roosevelt Ave, Suite 302, Indianapolis, IN 46201
Client/Owner: DELV Design Studio, LLC

Architect: Cara Weber, AIA, LEED AP, Partner / Co-Founder
Kelley Miller, AIA, RID, Sr. Architect / Interior Designer
Construction Start Date: May 2021
Construction End Date: September 2022
Interior Designer: DELV Design / Kelley Miller
Mechanical Engineer: TPC
Electrical Engineer: Gemco
General Contractor: Stenz Construction
Any other consultants, with their roles: Clutch Fabrication (Custom Metal Fabricator) /
RJE Furniture
Size in Square Feet: 6800 SF
Cost: $800,000

Photography: Adam Reynolds Photography, Kendall McQuay – The Addison Group Photography

MATERIALS AND SOURCES:
Acoustical System: MPS Acoustics
Carpet: Interface
Cabinets: Richeson Cabinets
Ceilings: Armstrong World Industries
Countertops: Cambria
Furniture: Allsteel
Glass: Falkbuilt
Lighting Control Systems: ESL Spectrum
Lighting: ESL Spectrum / Fluxwerx / Muuto
Metal: Clutch Fabrication and Design
Paints and Finishes: Sherwin Williams
Wallcoverings: Designtex
Windows and Doors: Falkbuilt

Upcoming Events

  • Design Smarter: Leveraging GIS, BIM, and Open Data for Better Site Selection & Collaboration

    Live Webinar

    Register for Free
  • Slate Reimagined: The Surprising Advantages of Slate Rainscreen Cladding

    Webinar

    Register Now
  • The State of Residential Design Today: Innovations and Insights from RADA-Winning Architects

    Webinar

    Register for Free
All Events