Des Moines Municipal Services Center

Project Details

Project Name
Des Moines Municipal Services Center
Location
402 SE 16th St.Des MoinesIAUSA50309
Project Types
Project Scope
New Construction
Shared By
Jill
Project Status
Built
Year Completed
2014
Size
113,000 ft²
Team
Principal-In-Charge: Channing Swanson

Project Description

Following an extensive master plan study, Phase 1 of this project has recently been completed.

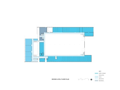
This municipality operated its field services from several older and outdated facilities scattered around the city. These services include the Departments of Public Works and Parks and Recreation, plus other services such as Engineering, Fleet, Traffic and Transportation, Housing Services maintenance, satellite maintenance facilities, and other service uses. In order to develop interdepartmental teams and cooperation, and to realize organizational efficiencies (cost savings estimated at nearly $2M/year and $3M one time), these services have been consolidated and centrally located into a single campus location. This Phase 1 project contains 113,000 GSF. Ultimately, 397,000 GSF will be required to consolidate the various city departments into one facility.

Organizationally, the building contains essentially two components—administrative offices and operational facilities. The final solution adopted two strategies which formed the basis of the final layout. First, the lab and storage spaces were organized into ‘saddlebags’ flanking the large central vehicle storage bay. The represented an evolution in the layout of typical municipal facilities. Secondly, the administrative ‘bar’ was pulled away from the operational components and connected with two ‘bridges’. This allowed light to penetrate into the center of the facility where otherwise there would typically be no outside access. A glass enclosed courtyard has thus been created as an amenity for the occupants of the building.

All materials used on the interior and exterior were chosen for both economy and durability and almost all are self-finishing, requiring little to no maintenance.

Upcoming Events

  • Slate Reimagined: The Surprising Advantages of Slate Rainscreen Cladding

    Webinar

    Register Now
  • The State of Residential Design Today: Innovations and Insights from RADA-Winning Architects

    Webinar

    Register for Free
  • Specifying Smarter with Copper-Clad Aluminum (CCA) Metal-Clad Cable

    Webinar

    Register for Free
All Events