Depot House

Project Details

Project Name
Depot House
Location
WashingtonCT
Project Types
Single Family
Project Status
Built
Year Completed
2012
Size
2,800 ft²

Project Description

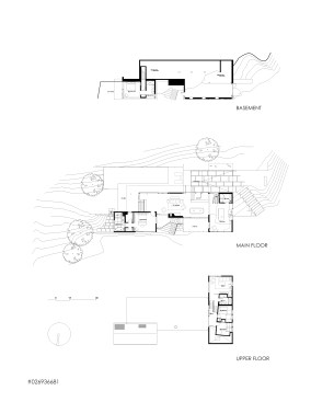
The Shepaug River Valley Railroad, which ran along the Bantam River in the late 19th century, stopped at this location, once the site of a tiny local train depot. After the closure of the railroad in 1948, two small homes were built on the foundations of the original depot. A pair of architects purchased the property in the late 1990s with the aim of transforming the rural site into a weekend retreat. The two existing homes had deteriorated significantly, but the new owners saved and reinforced the existing 19th century rubble foundation, using it as the base for this new house. Two simple gable structures, oriented perpendicularly to each other, create space for a large open plan between them and refer, through their forms, to neighboring barns and to the region’s agricultural heritage. The house interior is lined with bleached pine; kitchen, dining, living and family rooms overlap each other and create a rich series of spatial experiences that accommodate relaxed weekend living. The living spaces open onto a lap pool which is edged in stone-lined gabion baskets and is surrounded by a cedar deck. Outdoor spaces provide views across the meadow to the Bantam River. The house also features geothermal wells as the primary source of heating for its radiant floor system.

Upcoming Events

  • Design Smarter: Leveraging GIS, BIM, and Open Data for Better Site Selection & Collaboration

    Live Webinar

    Register for Free
  • Slate Reimagined: The Surprising Advantages of Slate Rainscreen Cladding

    Webinar

    Register Now
  • The State of Residential Design Today: Innovations and Insights from RADA-Winning Architects

    Webinar

    Register for Free
All Events