Dental Clinic Ladakh

Project Details

Project Name
Dental Clinic Ladakh
Location
LehIndia
Project Types
Healthcare
Project Scope
New Construction
Shared By
Miabelle Salzano
Project Status
Built
Year Completed
2017

Project Description

FROM THE ARCHITECTS:

HANNAH was commissioned by the Instant-Home Foundation e.V. to design and build a prefabricated dental clinic for the Ladakh region at the border of India, Pakistan, and Tibet. Ladakh means “land of high passes” and is currently the summer residence of the Dalai Lama, who is a patron for this project.

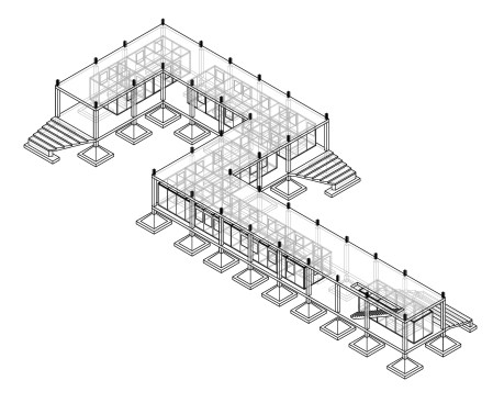
The building consists of two discrete systems – a concrete frame structure and modular programmatic elements. Ultra-lightweight honeycomb sandwich modules are prefabricated in Germany and shipped to India in overseas fright containers. The lightweight structure is designed to perform as a prototype for disaster relief pavilions and other building types which require fast construction and minimum planning.

All modules are connected with Munitec plug-and-play connectors that allow for the construction of a building in difficult locations without tools or heavy machinery. The building is arranged linearly, deforming to site conditions. The folding of one linear element creates distinctly different courtyards on the site. The clinic, a storage unit, and two separate small apartments are contained within the wooden lightweight SIP panel volumes and placed within the concrete framework. The building becomes a great pergola, shielding from harsh weather conditions in summer and winter. A large scale facade- and building mock-up was created to study and optimize the system.

The Ladakh Dental Clinic is a nonprofit project realized internationally in collaboration with various building industry partners. Construction of the concrete structure started in spring 2015. The wooden program volumes are scheduled for construction during a three-week period in August 2017 with the help of a large team of volunteers. More information about the project can be found on the project website: www.klinik-ladakh.de

Upcoming Events

  • Design Smarter: Leveraging GIS, BIM, and Open Data for Better Site Selection & Collaboration

    Live Webinar

    Register for Free
  • Slate Reimagined: The Surprising Advantages of Slate Rainscreen Cladding

    Webinar

    Register Now
  • The State of Residential Design Today: Innovations and Insights from RADA-Winning Architects

    Webinar

    Register for Free
All Events