Del Amo Fashion Center

Project Details

Project Name
Del Amo Fashion Center
Location
Torrance CAUSA
Architect
5+design
Project Types
Retail
Shared By
Mila Salahuddin
Project Status
Built
Year Completed
2015
Style
Modern
Size
2 ft²
Team
Principal Designer: Tim Magill
Lead Designer: Jeffrey Kleeger
Senior Designer + Interiors: Anadelia Robles
Photographer : Brandon Shigeta

Project Description

The newly redesigned Del Amo Fashion Center in Torrance, CA uses light, glass and articulation to create responsive retail spaces that invite exploration. Its open design is human centered, highlighting the display character of retail in spatially dynamic storefronts to create a welcoming public realm. Throughout the project, the notion of connection to the surrounding area is reinforced through both spatial and softscape elements.

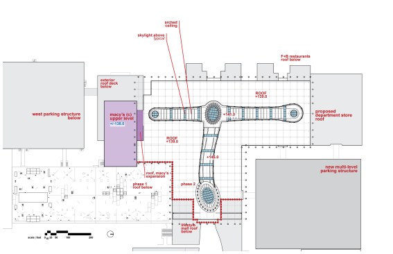
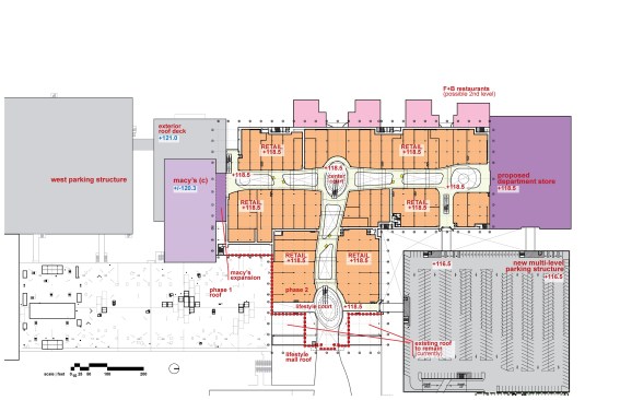
Designed in three phases, the first phase began with the renovation of a one level mall connecting two existing department stores. The concourse is unified by a continuous light soffit that floats over the storefronts and a softly shaped ceiling with enhanced lighting. The focus of phase 1 was the project’s food court that spans Carson Blvd, resulting in a garden dining terrace, surrounded by lushly planted walls washed in natural light from carefully places skylights and large windows.

The second phase is a new two level mall that links the Phase 1 renovation to the existing exterior Lifestyle Village on the east. The design included a lifted roof with clearstories and skylights that created an airy and spacious feeling throughout the mall.

Upcoming Events

  • Slate Reimagined: The Surprising Advantages of Slate Rainscreen Cladding

    Webinar

    Register Now
  • The State of Residential Design Today: Innovations and Insights from RADA-Winning Architects

    Webinar

    Register for Free
  • Specifying Smarter with Copper-Clad Aluminum (CCA) Metal-Clad Cable

    Webinar

    Register for Free
All Events