Deer Harbor House

Project Details

Project Name
Deer Harbor House
Project Types
Single Family

Project Description

This project was selected as the Editor’s Choice in the 2024 Residential Architect Design Awards, Spotlight Focus Fireplace category.

Positioned centrally, this fireplace links the living and dining areas, offering a shared experience from both spaces. Whether enjoying a meal or unwinding by the fire, the family gathers around this focal point, reinforcing a sense of togetherness.

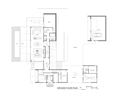
Designed with deep respect for nature, the home in Deer Harbor, Wash. seamlessly blends with its surroundings. Large windows and sliding glass doors flood the interior with natural light while framing stunning views of the nearby water. The house is carefully placed to follow the land’s natural contours, preserving the landscape and creating inviting outdoor spaces, including gardens and a treehouse for the children.

The main living space, next to the kitchen, is where the family spends most of their time. The fireplace, more than a design element, serves as a warm and welcoming hub. Its connection to the outdoor terrace enhances the seamless flow between inside and outside, reflecting the family's desire to live close to nature.

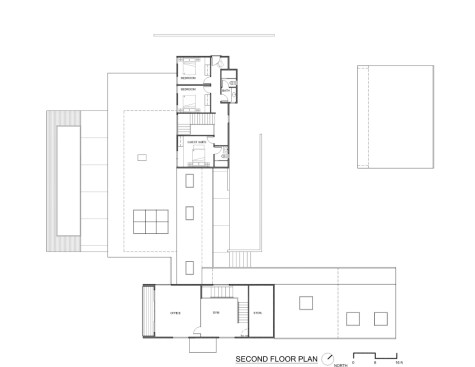
Beyond the central living areas, the home includes a guest suite, an art studio, a home office, and an exercise space. Each area is designed to maximize natural light and maintain a connection to the outdoors.

This home reflects thoughtful design, creating a place that nurtures family bonds, celebrates nature, and supports creativity. At its core, the fireplace stands as a symbol of warmth and unity, grounding the home in both function and emotion.

Photo Credit: Will Austin

PROJECT CREDITS:
Project: Deer Harbor House
Location: Orcas Island, WA
Client/Owner: NA
Architect:Syndicate Smith
Todd Smith, Founding Partner
Dustin Hoffman, Project Manager
Construction Start Date: NOV_2020
Construction End Date: SEP 2021
Interior Designer: Inese & Evan Westcott (Owner/Designer)
Structural Engineer: Eric Dann, BTL Engineering
Civil Engineer: Gregg Bronn
General Contractor: Westcorp Construction (Owner/builder)
Geotechnical Engineer: GEO TEST
Size in Square Feet: 5,505 GSF
Cost: NA

MATERIALS AND SOURCES:
Acoustical System: custom system of Guilford of Maine Fabrics, and batt absorbance / with acoustical slats.
Appliances:
Refrigerators, range, DW=Thermador
Concrete: Westcrete Construction (owner/Builder concrete business)
Energy source, including back-up source: Electric.
Exterior Wall Systems: Nakamoto Forestry Wood Siding.
HVAC:Heating=Custom Hydronic Floor in concrete mass system
HERV=Zehnder
No heat pump or air handling systems, no AC: just floor heat and HERV and operable windows.
Insulation:Walls=2” closed cell (r-12), makeup batt insulation r-13- assembly of R-25
Ceiling= 4” closed cell (r-25) makeup bath insulation r-13 to an R-38 assembly.
Roofing: TPO
Structural System: Wood Frame and Steel
Wallcoverings: Nakamoto Forestry
Windows and Doors: Sierra Pacific

Photo Credit: Will Austin

Upcoming Events

  • Design Smarter: Leveraging GIS, BIM, and Open Data for Better Site Selection & Collaboration

    Live Webinar

    Register for Free
  • Slate Reimagined: The Surprising Advantages of Slate Rainscreen Cladding

    Webinar

    Register Now
  • The State of Residential Design Today: Innovations and Insights from RADA-Winning Architects

    Webinar

    Register for Free
All Events