Deephaven Kitchen

Project Details

Project Name
Deephaven Kitchen
Location
DeephavenMN
Project Types
Single Family
Project Status
Built
Year Completed
2014
Size
550 ft²

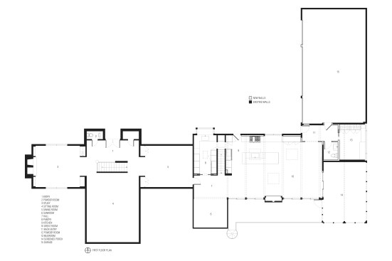
Project Description

The home is an iconic contemporary home overlooking a lake. Constructed in 1973, the home’s original, lighthearted spirit had been diminished by a series of renovations, resulting in an awkward interior space plan that was at odds with the clean, sophisticated exteriors. Among the project’s many challenges, the previous owners had converted the original garage to living space and a mudroom and added a new garage and another kitchen, creating two kitchens separated by a stair. Working within the existing footprint and mechanical systems, as well as the original doorways, windows, ceiling beams, and skylights, the architects designed a single, streamlined kitchen and an efficient storage pantry. To create a user-friendly connection between the two spaces, the architects designed an innovative steel and glass catwalk that spans the stair. As kitchen wall space was limited, the architects designed thin custom countertops that span the windows to provide additional work surfaces. Using original slate floor tiles found in the garage to connect the existing and new spaces, the architects restored the home’s original simplicity and elegance. The homeowners, who used to dine out frequently, rarely go out to eat, preferring to spend their evenings cooking, eating, and relaxing by the fireplace.

Upcoming Events

  • Design Smarter: Leveraging GIS, BIM, and Open Data for Better Site Selection & Collaboration

    Live Webinar

    Register for Free
  • Slate Reimagined: The Surprising Advantages of Slate Rainscreen Cladding

    Webinar

    Register Now
  • The State of Residential Design Today: Innovations and Insights from RADA-Winning Architects

    Webinar

    Register for Free
All Events