Death & Company Los Angeles

Project Details

Project Name
Death & Company Los Angeles
Location
Los Angeles90013
Architect
AAmp Studio
Project Types
Hospitality
Project Scope
Interiors
Shared By
aashey
Project Status
Built
Year Completed
2020
Size
2,500 ft²
Team
Principal : Andrew Ashey
Principal: Anne-Marie Armstrong
Room or Space
Other

Project Description

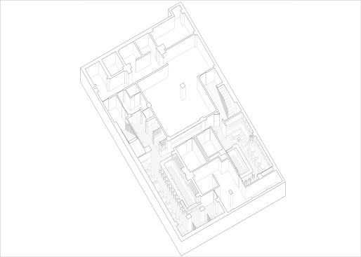
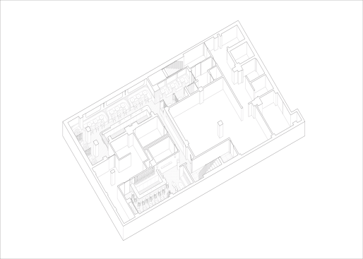
AAmp was commissioned by Death & Company to design two subterranean bars in Los Angeles’ Arts District. This space is the third outpost of the cocktail group.

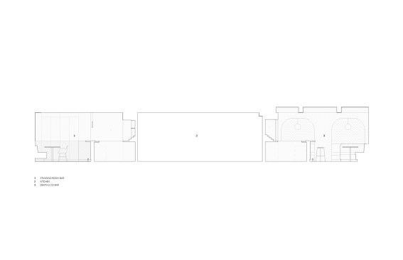
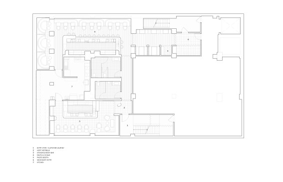
The design includes two bars flanking a central service core. Each bar takes cues from Death & Co’s spaces in New York and Denver while incorporating playful and patterned elements that reflect Los Angeles.

The intimate 30-seat bar at the entry provides a space for patrons to wait with a cocktail for a seat in the larger 80-seat bar beyond. The pullman booths are strategically tucked between large columns throughout the space, giving an opportunity for a layered sense of intimacy within the larger space. The bathrooms at provided an opportunity to bring out more of the rich colors peppered throughout the rest of the space, each one fully saturated in a single color to immerse the patron in its glow.

Upcoming Events

  • Design Smarter: Leveraging GIS, BIM, and Open Data for Better Site Selection & Collaboration

    Live Webinar

    Register for Free
  • Slate Reimagined: The Surprising Advantages of Slate Rainscreen Cladding

    Webinar

    Register Now
  • The State of Residential Design Today: Innovations and Insights from RADA-Winning Architects

    Webinar

    Register for Free
All Events